120㎡四居现代简约风格金源橙郡
发布时间:
2019年03月08日
小区:金源橙郡 面积:120㎡ 户型:四居 风格:现代简约风格
设计说明
现代简约风格装修是如今最流行的装修风格,也是年轻一族比较青睐的装修风格,融入简约的元素,时尚与潮流相结合,让家简约大气。现代简约风格装修是如今最流行的装修风格,也是年轻一族比较青睐的装修风格,融入简约的元素,时尚与潮流相结合,让家简约大气。
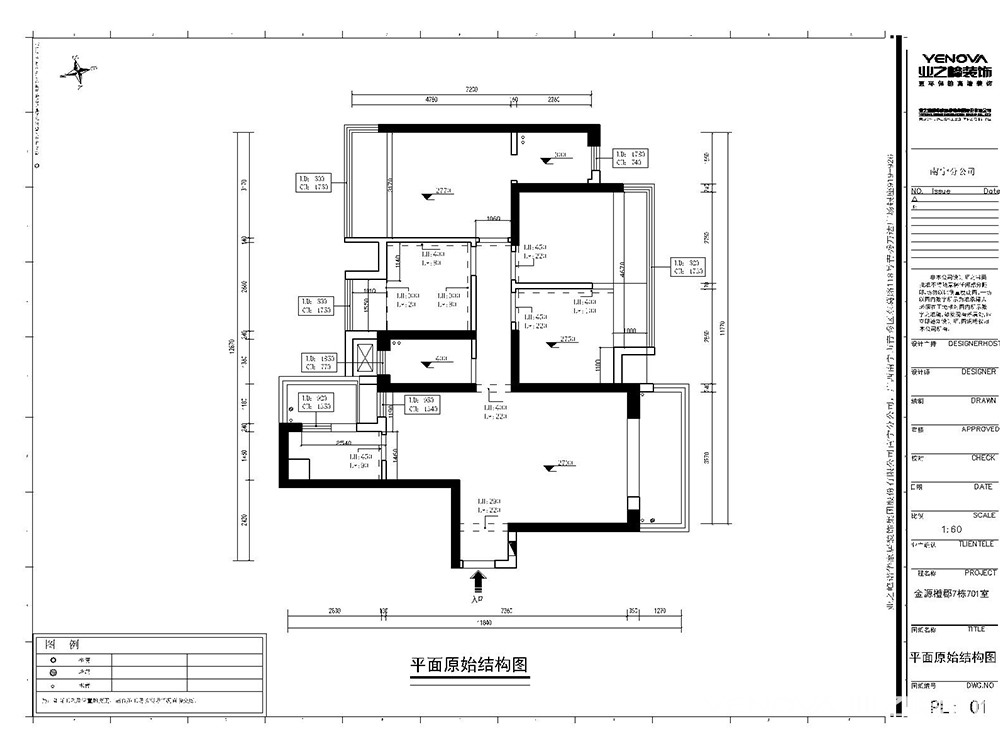
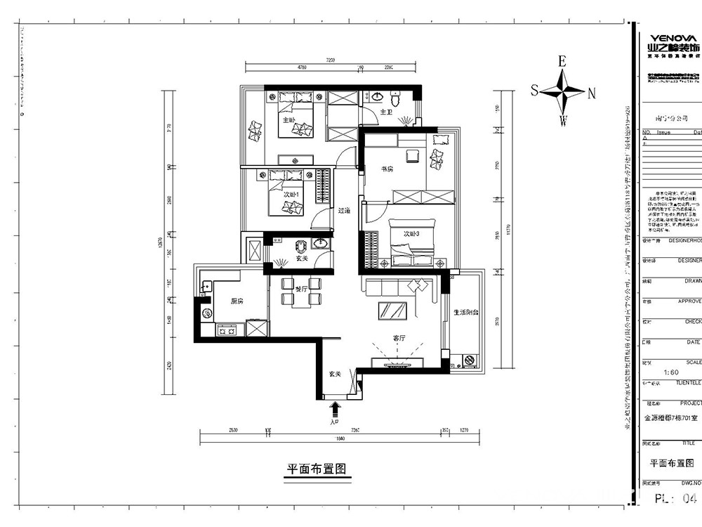
户型图

客厅




卧室






京公安网备11010502040911