143㎡三居东瑞揽胜
发布时间:
2019年03月06日
小区:东瑞揽胜 面积:143㎡ 户型:三居 风格:
设计说明
方案为整个设计风格为轻奢,简约的纯色空间,柔和、安静,呈现宁静雅致的氛围,总能在不经意间触动人心,精致的细节和充满艺术气息的软装陈设,营造出富有灵魂的艺术境界。空间装饰多采用简洁的直线与曲线结合,体现了当下都市年轻人追求时尚,精品的生活理念。
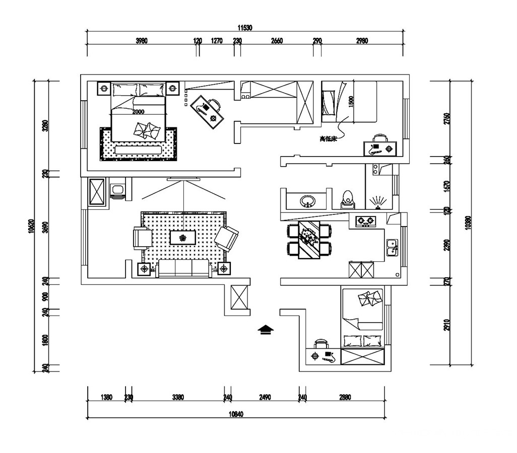
户型图

玄关

客厅




卧室


餐厅





京公安网备11010502040911