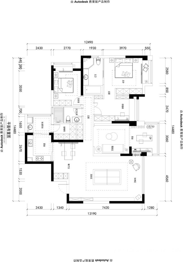
160㎡四居现代简约风格龙湖晶蓝半岛
发布时间:
2019年01月19日
小区:龙湖晶蓝半岛 面积:160㎡ 户型:四居 风格:现代简约风格
设计说明
本方案围绕现代简约为主题,但又不失个性化,以简洁的表现形式来满足人们对空间环境那种感性 的、本能的和理性的需求。根据业主的需求,大胆的采用了鲜艳跳跃的颜色,客厅里没有循规蹈矩 的布置沙发和电视机,而是摆放了乒乓球台,原本的电视背景墙则采用了蓝粉色等年轻而又不死板 的颜色,旁边再放上黄色的单人沙发,让整个空间显得年轻又时尚。原本的沙发背景墙放上一面大 镜子,使得整个空间大了起来,加上背景的彩色乳胶漆,显得时尚而前卫。卧室同样用了蓝色和粉 色的墙面乳胶漆,与客厅整个空间相互呼应,有联系。床上的抱枕和床尾的独凳很好的和墙面进行 了呼应,进而赋予空间个性与宁静,吊灯流畅的线条以及简单的造型,又很好的契合了现代简约的 主题。大胆而灵活,不单是对简约风格的遵循,也是个性的展示。
户型图

客厅



卧室





京公安网备11010502040911