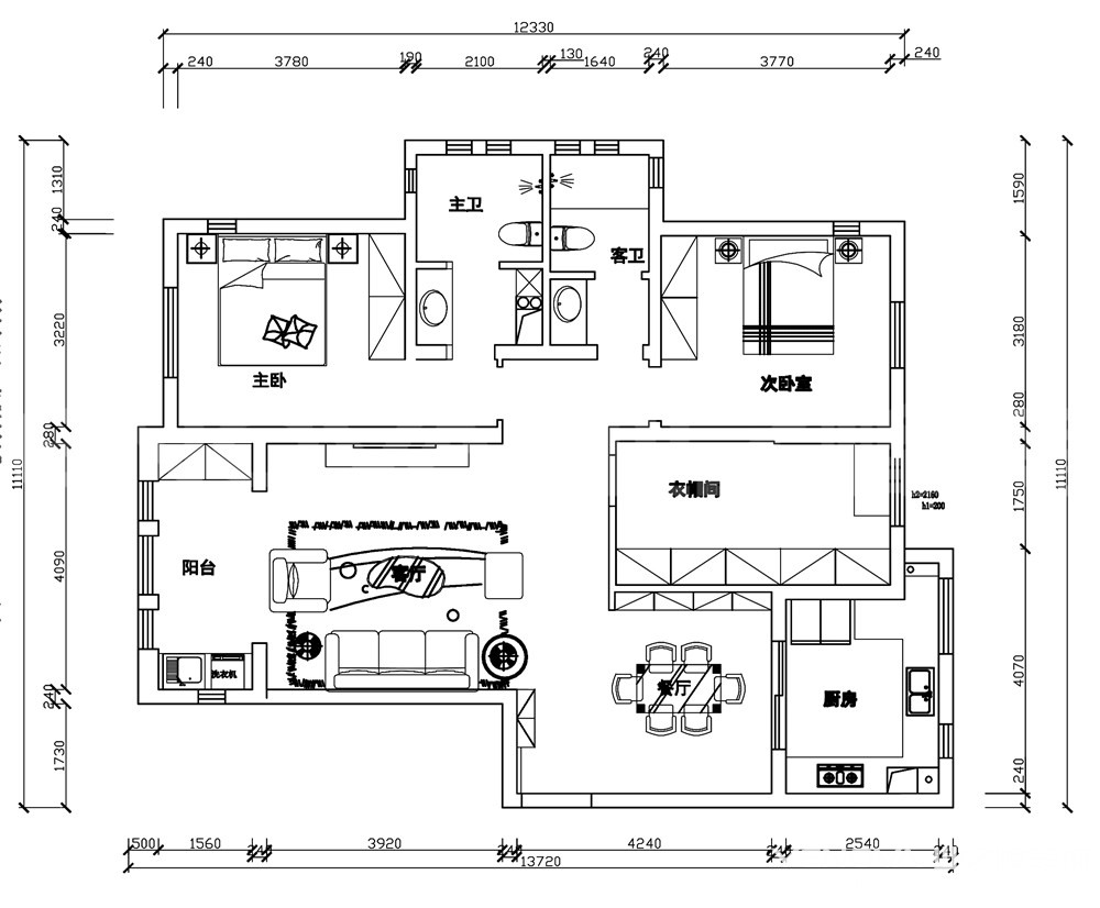
148㎡三居现代简约风格三川御锦台
发布时间:
2018年12月25日
小区:三川御锦台 面积:148㎡ 户型:三居 风格:现代简约风格
设计说明
本案为三川御锦台148平米设计方案,风格定位于简约雅致风格,将设计的元素、色彩、照明、原材料简化到最少的程度,空间设计非常含蓄,达到以少胜多、以简胜繁的效果.以简洁的表现形式来满足业主对空间环境那种感性的、本能的和理性的需求,使业主在繁忙的生活中,得到一种能彻底放松......
客厅









京公安网备11010502040911