110㎡三居现代简约风格绿地国际博览城
发布时间:
2018年11月16日
小区:绿地国际博览城 面积:110㎡ 户型:三居 风格:现代简约风格
设计说明
本案的居家格调整体定位为灰白色调的简约现代,简洁,干练,让家中呈现一种自然的舒适。木质地板,现代感极强的墙面高级灰,映衬着白色家具与原木色家具。冷暖相间,整片色彩带来一种低调的宁静感,沉稳而内敛。不同质感和形象的点光源在不同的空间相互穿插使用。色泽自然而富有灵性,整体设计洋溢着现代风情。色泽自然而富有灵性,整体设计洋溢着现代风情。
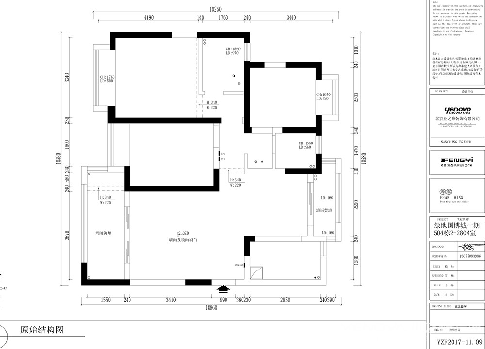
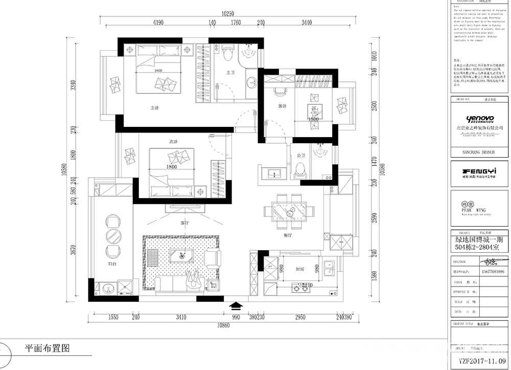
户型图

客厅


餐厅





京公安网备11010502040911