140㎡平层现代简约风格曲江风景线
发布时间:
2018年10月01日
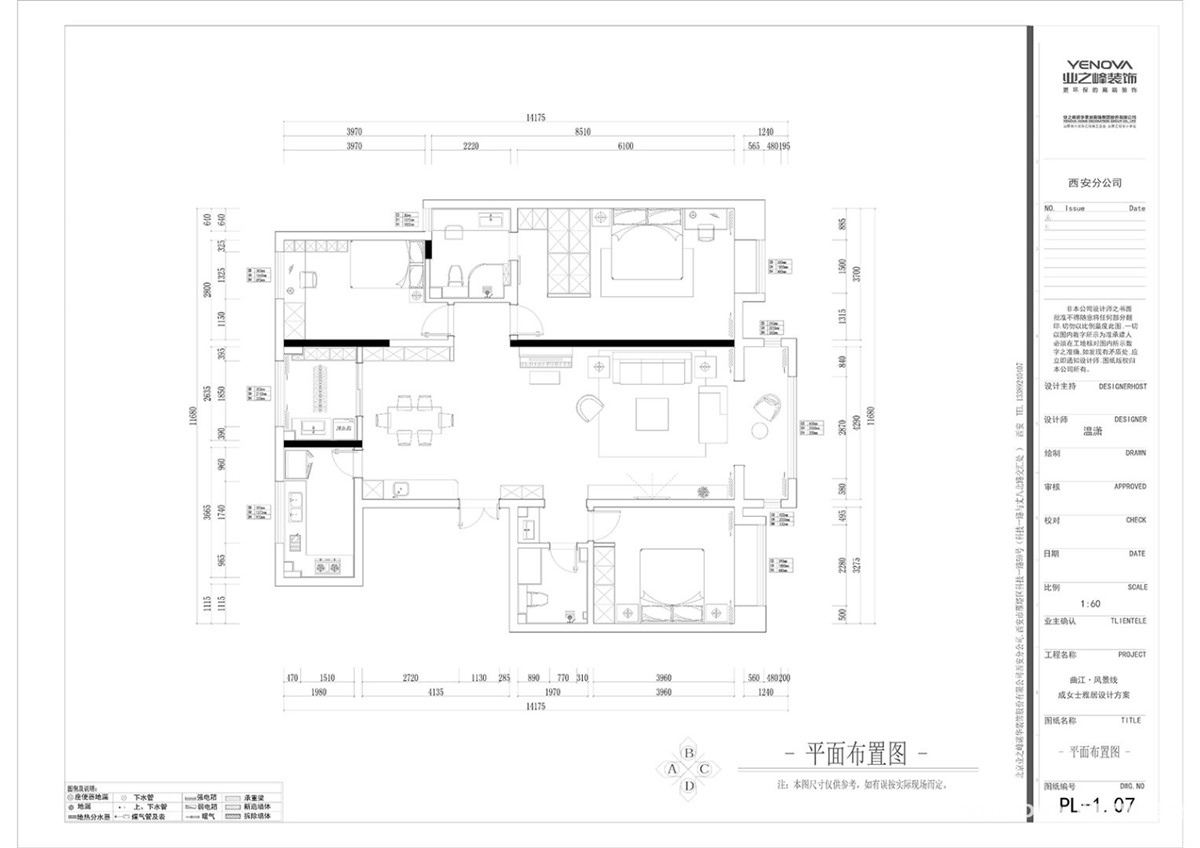
小区:曲江风景线 面积:140㎡ 户型:平层 风格:现代简约风格
设计说明
此户型为三室一厅居室设计占地面积总共140多平方米,要满足三代人同时居住,因此在设计上有很大的难度,而设计师采用的时尚现代简约风格可以很好的表现此空间的完整性,在小空间里面找到属于自己的空间其中很多设计上更具有人性化,使空间更实用,功能性更大,在设计上,让一个狭小的空间变的具有大空间、透光性较好等特点;在施工工艺上,安排得更加合理;在颜色搭配上,给人以低调、高雅、神秘的感觉。
该设计介于现代的居住环境以及生活的现状而产生影响的设计表现,以简约不简单的设计方法来实现个人对居住环境的要求,以清淡色调为出发点描写个人的品位与心境。
事业的压力、繁琐的应酬让他们需要一个更为简单的环境给自己的身心一个放松的空间。不拘小节、没有束缚,让自由不受承重墙的限制,是本案客户面对设计师时最先提出的要求。所以在装修过程中,相对简单的工艺和低廉的造价,也被欢迎和采纳,目前室内设计流行自然简约风格,对那些复杂的家具和设计感到尤为的沉重和复杂化。因为随着中国经济的不断发展,人们生活水平的不断提高,在白天如此的紧张和繁忙,所以都想在回到家中,感到轻松愉快,这也就给我们设计上增添了设计的理念和目标。在居住空间里,运用色彩的搭配创造一个独特的、流畅的空间,让人们在忙碌的工作中感到一丝轻松,在紧张的生活中体会到浪漫情调,从而体现设计中的美观、舒适、放松心情。
户型图

客厅





卧室

儿童房

餐厅





京公安网备11010502040911