143㎡三居现代简约风格时代豪庭
发布时间:
2018年08月22日
小区:时代豪庭 面积:143㎡ 户型:三居 风格:现代简约风格
设计说明
本案例以后现代个性为主,亮点是家具和空间色调为主,强烈的科技感和时尚感呼之欲出,业主是南方人,工作时间竞争压力大,所以希望居家环境要简洁个性,舒适放松,不要过多的堆砌和造型,由此在设计上主要通过材质和色调来营造一个时尚简洁舒适的居家氛围,公共空间主要以黑白色调为主,色彩明白简洁,在材质上运用石材,肌理墙纸,木纹灰地砖!最终给业主营造一个舒适放松的居家环境。
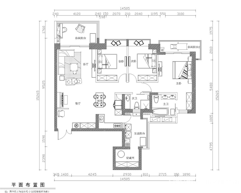
户型图

客厅


卧室

卫生间





京公安网备11010502040911