90㎡三居现代简约风格依山伴城
发布时间:
2018年08月12日
小区:依山伴城 面积:90㎡ 户型:三居 风格:现代简约风格
设计说明
现代风格外形简洁、功能强,强调室内空间形态和物件的单一性、抽象性。装修中极简便是让空间看上去非常简洁,大气。迎合了年轻人的喜爱,看上去明朗宽敞舒适的家,消除工作的疲惫,忘却都市的喧闹。
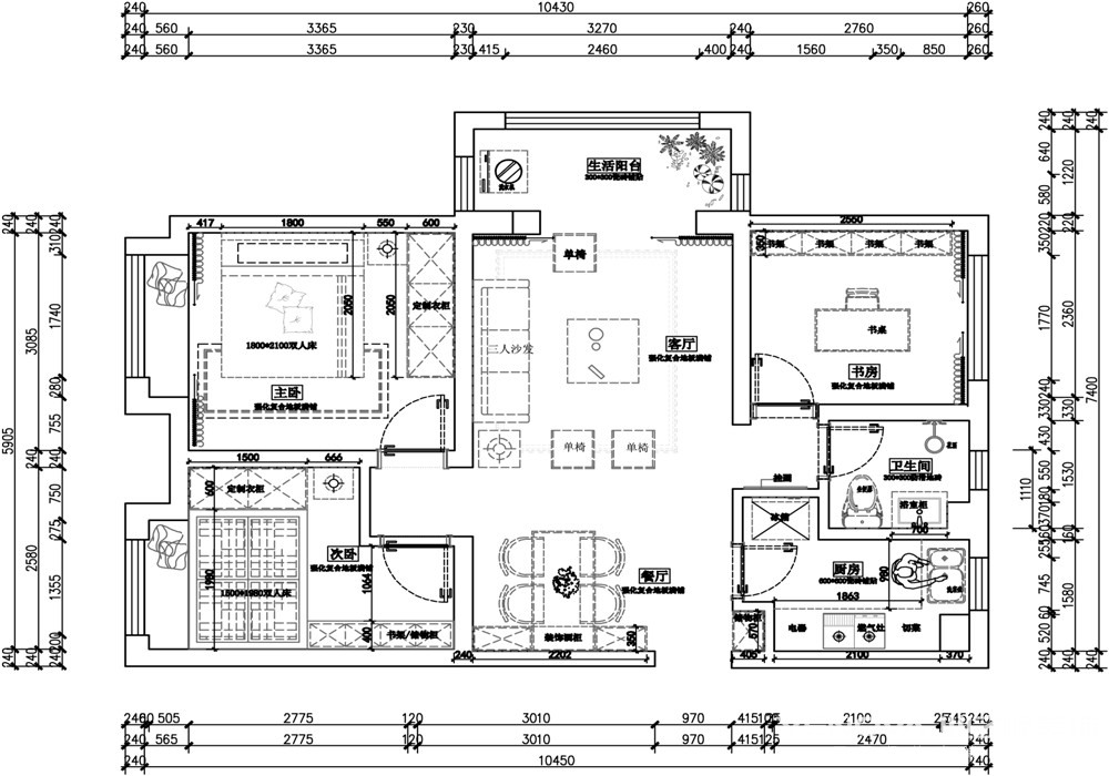
户型图

客厅



餐厅


现代风格外形简洁、功能强,强调室内空间形态和物件的单一性、抽象性。装修中极简便是让空间看上去非常简洁,大气。迎合了年轻人的喜爱,看上去明朗宽敞舒适的家,消除工作的疲惫,忘却都市的喧闹。





