135㎡三居福星惠誉福星城
发布时间:
2018年08月05日
小区:福星惠誉福星城 面积:135㎡ 户型:三居 风格:
设计说明
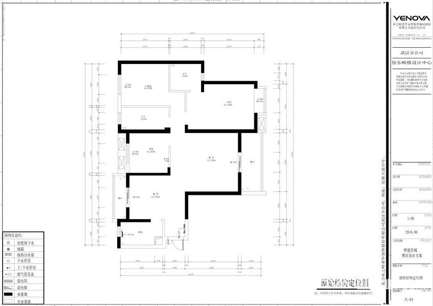
本案为三房两厅的结构, 实地勘测后发现原户型布局非常不理
想,客厅虽大但长宽比例不协调,客餐厅空间不够通透,采光面也
比较小,原主卧卫生间成方形结构不好利用,厨房储物空间严重不
够!最重要的是承重墙太多太多.....我们在设计的时候改变了原
厨房的进门方向,在餐厅区域增加了西厨,同时把北阳台也利用了
进来,改变主卫生间结构的同时也增大了小孩房的空间,一举两得
同时也大大增加了两个房间的储藏功能。墙面部分大面积留白,后期软装利用天然的棉麻.素帘.皮革.原木的混合搭配,由浅入深的表达出独特的自然之美!
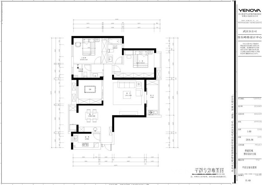
户型图

书房

卧室

客厅




餐厅

卫生间


厨房





京公安网备11010502040911