90㎡三居中部慧谷
发布时间:
2018年08月05日
小区:中部慧谷 面积:90㎡ 户型:三居 风格:
设计说明
工业loft的装修风格是时下很多追求个性与自由的人的最爱,这种风格本身所散发出得粗狂、神秘的特质,绝对会让很多人一眼看到就爱上!
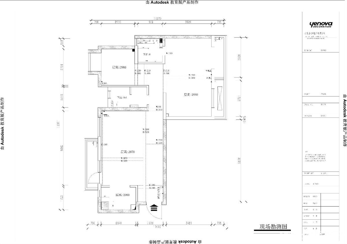
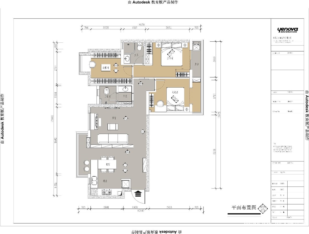
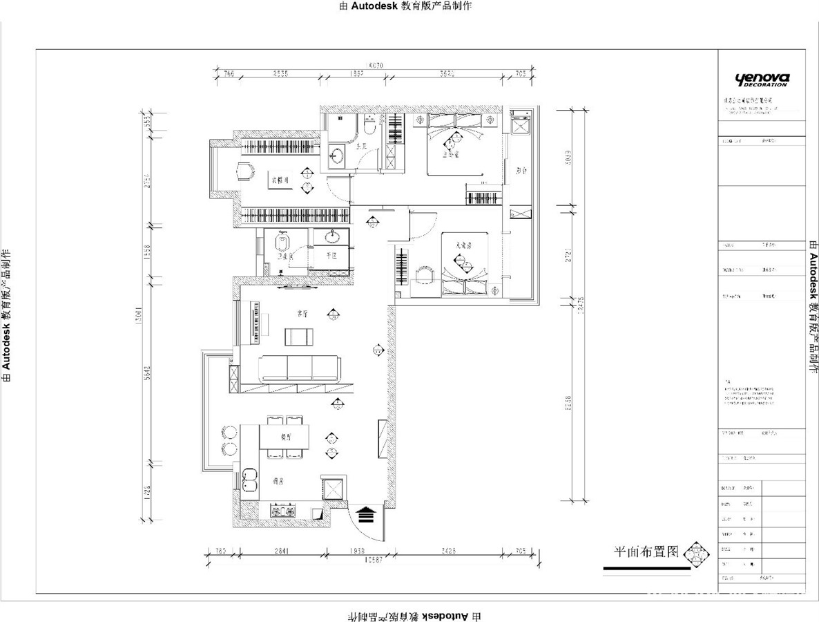
这个户型整体来说是十分规整的,房间都很方正采光也相当好。层高2880相对来说十分舒服了。可能最大的问题就是客餐厅功能分区不是很明显,整个客餐厅空间并不是很大。厨房去掉管道和柱子的位子实际的橱柜也相当的小。介于业主平时在家做饭的频率并不是很高,又需要一个大的办公区域。那么这个方案就把原本的厨房能打掉的墙体全部拿掉,做一个开放式的厨房,把橱柜整个延伸出去选用比较个性工业的大板与整个岛台链接在一起。形成一个开放式的厨房与餐厅一体。那么通过一个很具有工业感的水泥书架把客厅餐厅一分为二,不仅可以放置一些书和装饰品,同时也使得沙发有靠山,也有一个功能分区的衔接作用。客厅背景墙选用砖墙取代单调的粉刷墙面
客厅










京公安网备11010502040911