190㎡四居新中式风格招商公园1872
设计说明
项目名称:云雀之舞——后官湖庭
建筑面积:190㎡
装修风格:新中式风格
设计师:雷伟
代表作品:招商公园、恒大绿洲、世纪江尚等。
设计理念:设计来源与生活,并高于生活。
擅长风格:现代简约、新中式、欧式,美式。
本套案例为新中式风格,整体基调温馨简洁大方。
本案例背景是:业主本人是经营公司,一家四口,保姆房,主卧,两个儿童房。对业之峰非常认可,在官网上了解各位设计师作品,特意选择我一起共同完成这个作品。要求是实用、舒适、省心、要凸显品味和读书氛围。由工作忙经常出差,人经常在外地,所以设计师的沟通能力,对设计施工的把控能力显得格外重要,好的作品落地需要多方沟通和支持。常住人口4人,风格新中式风格。
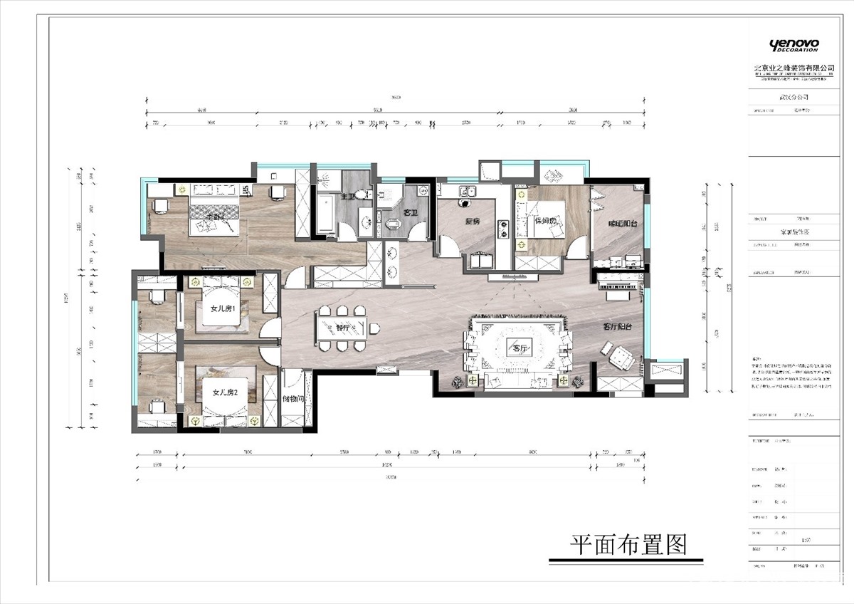
原始户型剖析该户型采光一般。进门厅感不强,一眼看得到卫生间门。在设计上我做了1拆掉现有厨房墙、阳台门,直接打通,扩大厨房。3主卧做了一个套间,加强采光、通风,让主卧舒适,把主卧加了一个衣帽间、书桌办公区域、主卫。4将阳台分割给2个孩子休闲阳台。
色彩效果:业主本人是商人但很注重学习、文化氛围、家庭教育,思想活跃,品味优雅,业主更是对传统文化有深刻了解。本案的设计手法想凸显家庭文化底蕴,平和理性的特点,同时满足业主家庭温馨感的要求,浅灰、深蓝、浅咖、咖色。
风格定位:选择新中式风格,既不过分张扬,又恰到好处的把传统文化氛围的雅传到每一处。既凸显房屋本身特点又彰显主人的品味格调。
设计亮点:在于格局更明朗,功能分区明显,通风采光良好,色调舒服,符合业主需求。
配饰:家具上选用实木咖色家具,木雕格栅,石材(拉长空间、增加反射光),茶几、地灯、圈椅、窗棂、屏风等,玫瑰金去撞孔雀蓝,整个氛围简洁清秀。













京公安网备11010502040911