120㎡三居复地东湖国际
发布时间:
2018年08月04日
小区:复地东湖国际 面积:120㎡ 户型:三居 风格:
设计说明
楼盘 :复地东湖国际6期
面积 :120㎡
风格 : 简约美式
我颠覆了一整个世界,只为了摆正你的倒影。
每间房的装修都承载着每一个房主的个性,见房如见人。本案为婚房,也许是一场,注定的风花雪月!
以优雅的美式风格定位,空间用以低奢的色彩和谐相处,以金色系、蓝色系、米色等弥漫着典雅与温馨的格调。其实设计风格中融入具象艺术画、鼓凳、托盘、优雅的花卉,增添些五彩斑斓的书籍的文艺味,空间充满温暖阳光与怡然的生活方式。
生活的真谛不在于奢华的享受,在于生活的舒心和内心的平静,如海边游玩归来捡回来的贝壳,宁静的蓝色下是对生活热情的回应。
白色可以“借走”些许凌乱,使厨房空间干净明快。
白色的过道空间,宛如走进殿堂。
经典美国装饰风格在视觉上将色彩和质感融合在一起。纱帘透着光和金饰宁静共存,营造出一种冷静深思的氛围。
我总是无数次地回想,那些大雪弥漫的冬天,城上破裂的云朵和不曾出现的朝阳。你的肩膀撑开了一整座夏天。
凡世的喧闹和明亮,世俗的快乐和幸福,如同清亮的溪涧,在风里,在我眼前,泱泱而过,温暖如同泉水一样涌出来,我没有奢望,我只要你快乐,不要哀伤。
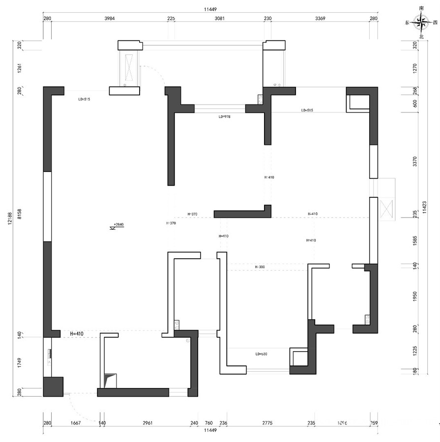
户型图

卧室




休闲区

卫生间

客厅





玄关


厨房

餐厅






京公安网备11010502040911