127㎡三居汤逊湖壹号
设计说明
项目名称:雾气白桦林——汤逊湖壹号
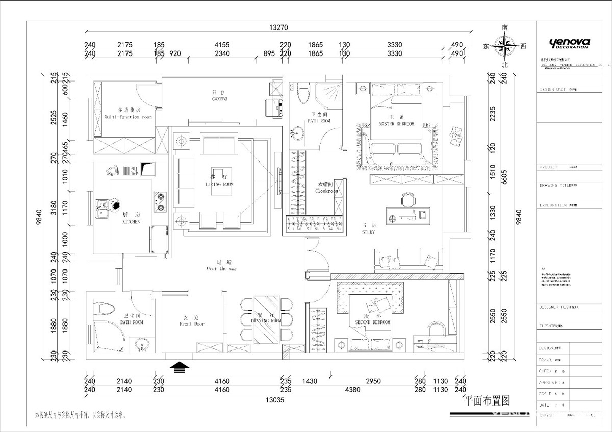
建筑面积:127㎡
装修风格:简美风格
设计师:雷伟
代表作品:招商公园、恒大绿洲、世纪江尚等。
设计理念:设计来源与生活,并高于生活。
擅长风格:现代简约、新中式、欧式,美式。
本案例背景是:业主是一对新婚夫妻,两人感情非常好,汤逊湖壹号作为他们婚房,从选址就透着对彼此的爱以及未来20年的规划和新家的期待。此户型南北通透,临湖。夫妻事业有成,未来会有孩子,一家三口。需求是:2间房,两间卧室,男主人想要一个大书房去处理工作事务,房子优点,南北通透、采光好,房子缺点是无厅感,功能区域不明,没有玄关背景。因为是改善型住房,女主人希望通透、采光一定要好、有品质、大厨房、住着舒服有格调。
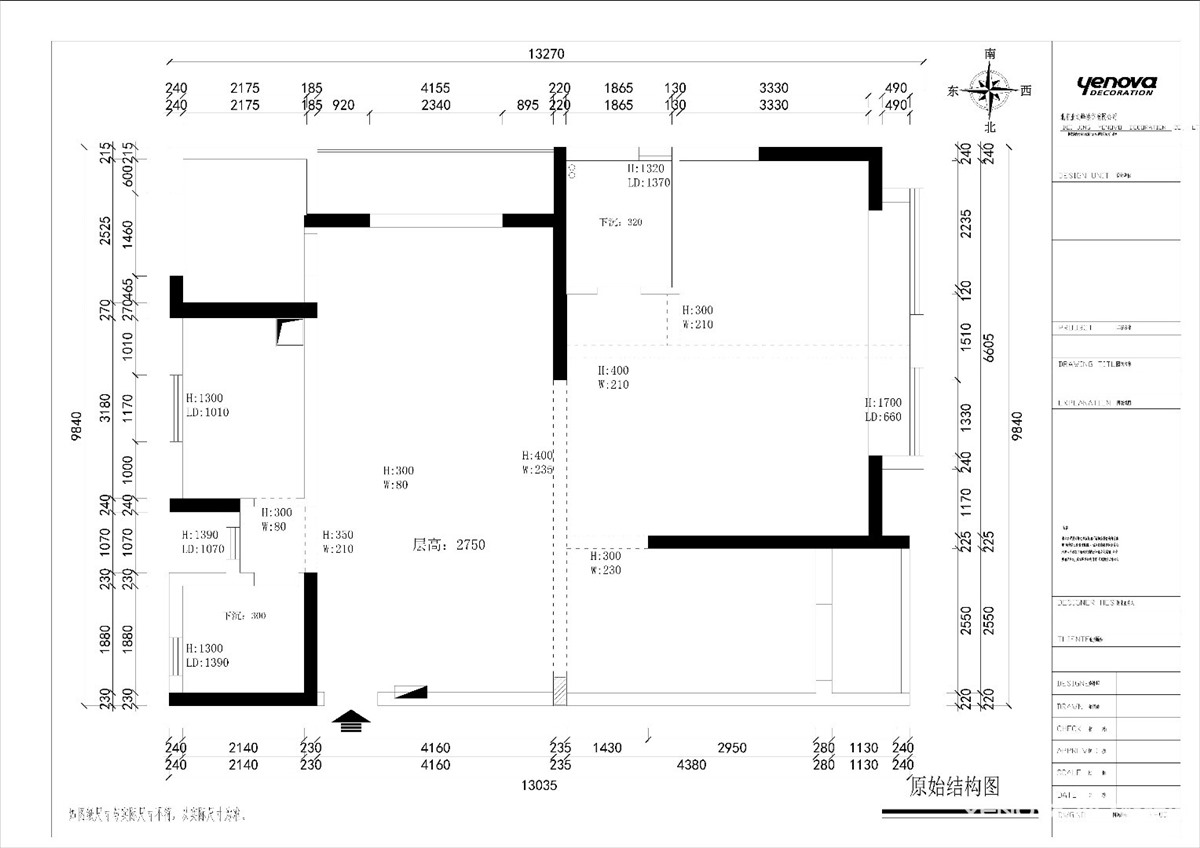
原始户型剖析本户型南北通透,结构不错,通风采光良好,我们需要做的是让功能更加完整,色彩软装搭配舒服。该户型三室两厅一厨两卫,一杂物间。房屋有以下问题:厨房门洞小采光不好,储物室开门方向破坏了电视背景墙,让中轴线偏移。这么好的户型却没有门厅。餐厅的功能区域占地面积略显浪费。所以我做了以下改造。设计亮点:1入户门处增加了门厅,加强厅感。2拆掉现有厨房门、加强采光。3由于业主只需要两间房,所以做了一间主卧大套房,集卫生间、书房、衣帽间、主卧卧室休息功能为一体。4通过墙面地面处理,让客餐厅完整,统一又有明显功能划分。5修改了储物间门门方向,从阳台进入。让电视背景墙完整。
色彩效果:业主夫妇是温文尔雅,品味优雅,在色调上选用最多的颜色是亮白色,选用这个颜色是想营造层层围绕、大面积去渲染薄雾弥漫,晚霞色的沙发,在同色彩的线条造型吊顶和电视背景线条的衬托下宛如冬日的阳光那样温暖。浓郁的灰色护墙板犹如定海神针让躁动不安的心回归涓涓细流般平稳。蜂蜜色的墙布和窗帘,既细腻精致,又高贵奢华。
风格定位:选择简美风格,简洁明快,又有凸显的重点,整体感觉是宽敞、开放、明亮、又有青春活泼的感觉。
设计亮点:在于格局更明朗,功能分区明显,通风采光良好,色调舒服,设计上精于心,简于形符合业主需求。
配饰:家具上选用实木深咖色家具,成套的布艺软装,美式铜灯,茶几、地灯、田园装饰画等,软装选用奶咖、明黄、深灰、蓝色,整个氛围简洁大气又不失明亮轻奢。











京公安网备11010502040911