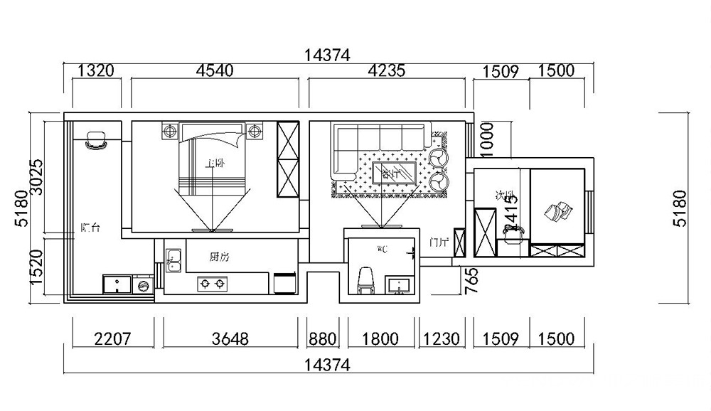
80㎡二居现代简约风格科学院宿舍
发布时间:
2018年07月31日
小区:科学院宿舍 面积:80㎡ 户型:二居 风格:现代简约风格
设计说明
装修热线:0791-86296016
两位和蔼可亲的长辈养老房 设计重点放在
功能实用性上 很多小细节从安全便捷考虑
整体搭配简洁清爽 施工工艺严谨标准
设计中更多的融入了健康 正能量的理念
客厅








装修热线:0791-86296016
两位和蔼可亲的长辈养老房 设计重点放在
功能实用性上 很多小细节从安全便捷考虑
整体搭配简洁清爽 施工工艺严谨标准
设计中更多的融入了健康 正能量的理念







