108㎡三居紫金华府
发布时间:
2018年07月25日
小区:紫金华府 面积:108㎡ 户型:三居 风格:
设计说明
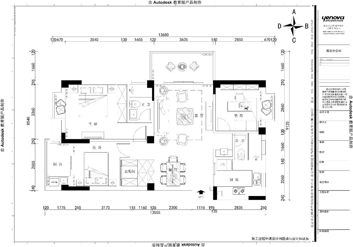
本案为紫金华府108户型,客户要求美式风格设计。在本案的设计中,对于其厨房与卫生间的区域加以调整,增加了冰箱区域 。解决了原户型冰箱位置摆放尴尬的问题,提高了厨房的空间利用率。
在次卧的区域,将原有往外的储物间,划为次卧专用的衣帽间。将原有的小储藏间改为大的衣帽间,同时缩小了阳台的位置,空间划分更加合理,并且可以相应增加餐厅的储物柜功能。使空间更紧凑,更合理。
在墙面造型上,以蓝色墙板为主体,营造美式的氛围。
户型图

客厅



卧室





京公安网备11010502040911