117㎡三居东风阳光城
发布时间:
2018年05月15日
小区:东风阳光城 面积:117㎡ 户型:三居 风格:
设计说明
每一处的精心搭配,彰显设计的用心与追求,在不经意间造就一处处精致的画面。精致的饰品摆件,刚性与柔和的材质结合,丰富细腻的布艺面料,无声中透露出优雅的气质,让空间更加和谐舒适。餐厅与客厅之间毫无阻隔,可以想象与好友们相聚用餐时的开放与随性,不拘泥于空间的功能性。金色的包边线条与白色皮革、水滴形玻璃吊灯组合,产生一种当下潮流的时尚之美,同时透过色彩搭配,来增强空间的整体性。淡的紫色与香槟色让主卧充满优雅的韵味,既装载了浪漫的私人空间,又融进了对生活的向往,色彩的碰撞更是呈现出曼妙丰富的设计细节。作为空间的缔造者,用简练的线条、优雅的色调、适当的留白、精致的家具饰品,造就了如此优雅的空间,让设计与品质生活完美融合,传递优雅的生活体验
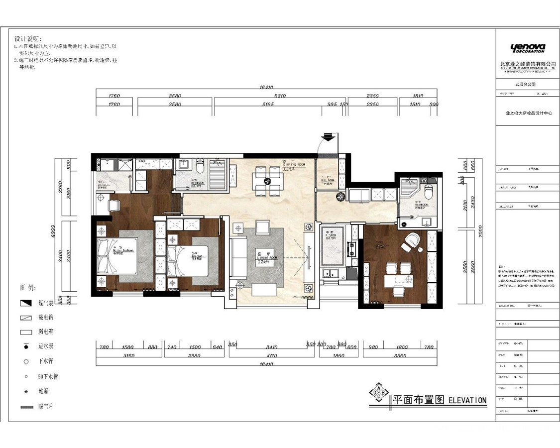
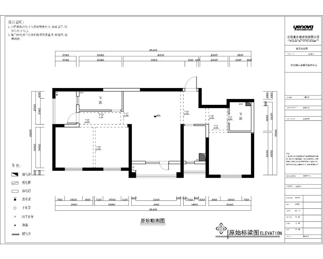
户型图

卧室


客厅




书房

休闲区

餐厅





京公安网备11010502040911