335㎡别墅金地格林春岸
发布时间:
2018年05月15日
小区:金地格林春岸 面积:335㎡ 户型:别墅 风格:
设计说明
整体空间色调主要采用文雅静谧的浅色调,主要由木饰面,白色乳胶漆,墙布,钛金拉丝不锈钢等主材构成。有着6m高的客厅区域,设计师通过空间梳理,针对客厅部分运用对称和简练的线面构成手法,确立出空间的中轴线,并且在立面处理上力求在疏密比例的线面衔接中做到延伸的细节追求,使原本不对称的背景墙更加和谐庄重,体现的不仅是空间熏陶出来的意境,更是对生活细节追求的态度。
半通透屏风在空间中起着重要的隔断功能的同时更是过道中的一道风景线,让游走在空间中的人犹如身临高山迷雾中,室外时而传来鸟鸣更是写意。
负一层去除管道层的高度约为4.5M,在如此尴尬的高度中做夹层固然会感到压抑,所以设计师在梳理空间功能分布的时候把走动较少的功能空间安置在夹层,并且通过镜面和灯光效果把空间压抑感减到最低。负一层同样延用一层的线面构成手法,品酒区保留层高做出中空位置。在材料上做变化,加入机理漆与钛金相搭配让空间色调更加丰富,在软装的点缀下更显高雅自得之意。
空间规划的合理划分能够提升业主的生活质量,设计师将整三层划分为主人活动区,并舍去原主卫生间的部分空间纳入到衣帽间,整个区域形成回路动线。
主人房床头背景的屏风水墨元素为空间的主视线,并以镜面延伸,虚实交错,增加了情趣丰富了视觉。天花四周的灯槽是整个空间氛围的渲染光源,犹如在月光底下那水墨般的丝丝白雾,飘散贯穿于空间中。
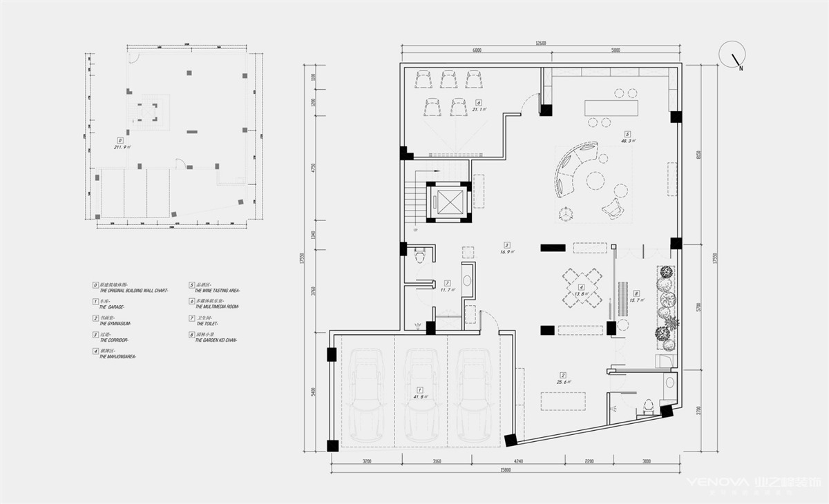
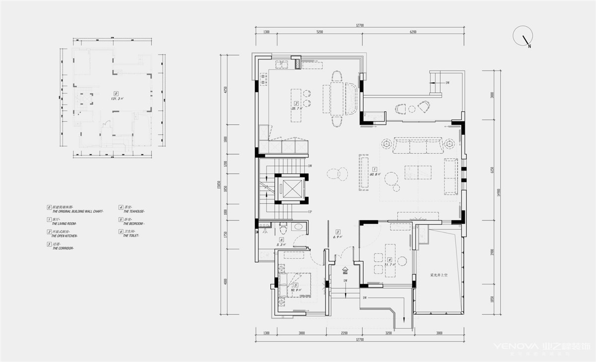
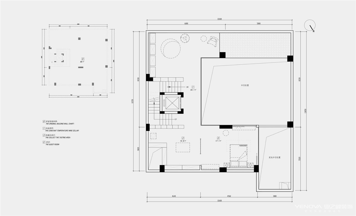
户型图

客厅







休闲区

卧室





京公安网备11010502040911