125㎡三居世茂天城
发布时间:
2018年02月21日
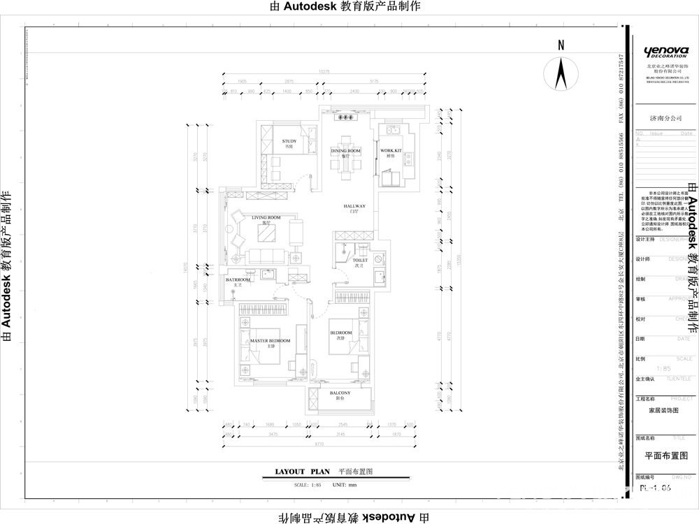
小区:世茂天城 面积:125㎡ 户型:三居 风格:
设计说明
美式简约风格中整体的空间对色彩的运用给人温和柔美的感觉,美式简约风格所具有的贵气感、自在感与情调感,构成了具有新流行文化意味的生活方式。
美式简约风格居室色彩主调为温和色。美式的简约表达出了美国这一移民国家在各种族文化的糅合下一种新的生活品味。所以,在色调上强调空间的明亮清透,减轻色调配搭上的彩度比重。但是在色彩的搭配上比较大胆,总体还是要符合整体风格。
户型图

休闲区

客厅




玄关

餐厅





京公安网备11010502040911