100㎡三居现代简约风格财富中心
发布时间:
2018年02月21日
小区:财富中心 面积:100㎡ 户型:三居 风格:现代简约风格
设计说明
本案追求的是空间的实用性和灵活性。居室空间是根据相互间的功能关系组合而成的,而且功能空间相互渗透,空间的利用率达到最高。空间组织不再是以房间组合为主,空间的划分也不再局限于硬质墙体,而是更注重会客、餐饮、学习、睡眠等功能空间的逻辑关系。通过家具、吊顶、墙地面材料、陈列品甚至光线的变化来表达不同功能空间的划分,而且这种划分又随着不同的时间段表现出灵活性、兼容性和流动性。
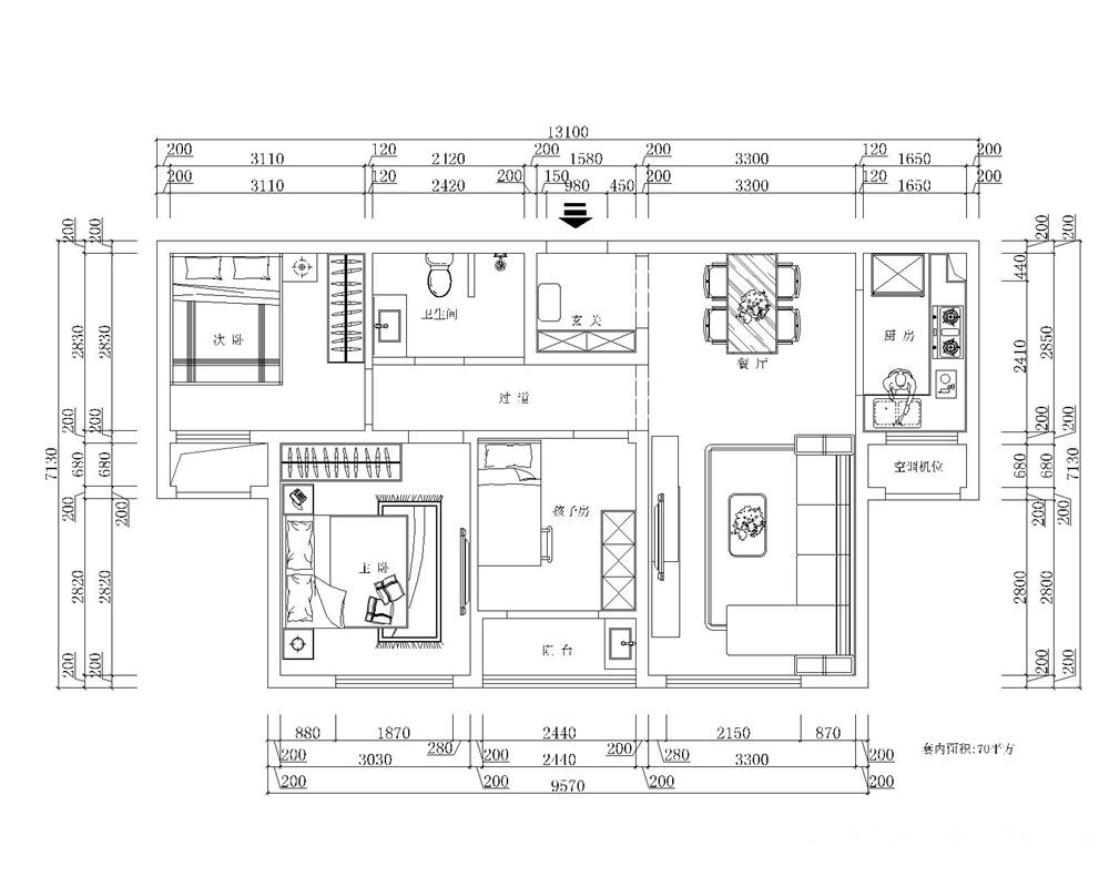
户型图

玄关


客厅



卧室

餐厅





京公安网备11010502040911