110㎡三居现代简约风格中海紫御东郡
发布时间:
2018年02月21日
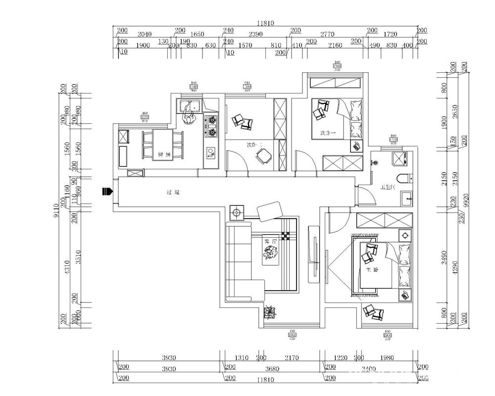
小区:中海紫御东郡 面积:110㎡ 户型:三居 风格:现代简约风格
设计说明
一壶清茶,不拘几人,这种难以言喻的意蕴不是来自别处,正是来自对简素生活的一种热爱。软风是温柔的手指,穿过米白色的纱幔,拂上牆头一水江南的墨色。充满张力的空间里,天光熨帖著整个家,三代同堂的言笑晏晏,即便没有花,也开放出繁盛。温润的灰度、细节的打磨,让整个家在质朴与精致的对立统一中,似有无穷言语。
户型图

玄关

餐厅

客厅




卧室

休闲区





京公安网备11010502040911