167㎡三居新古典风格中冶盛世滨江
发布时间:
2018年02月21日
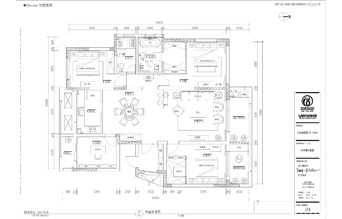
小区:中冶盛世滨江 面积:167㎡ 户型:三居 风格:新古典风格
设计说明
欧洲文化丰富的艺术底蕴,开放、创新的设计思想及其尊贵的姿容,一直以来颇受众人喜爱与追求。新古典风格从简单到繁杂、从整体到局部,精雕细琢,镶花刻金都给人一丝不苟的印象。一方面保留了材质、色彩的大致风格,仍然可以很强烈地感受传统的历史痕迹与浑厚的文化底蕴,同时又摒弃了过于复杂的肌理和装饰,简化了线条。
经过改良的古典主义加以更新,载进新元素造型略简的家具。变的是繁复的线条,不变的是古典怀旧的经典情怀,这是一种积淀,是一种传承,是大宅的气势。
户型图

卫生间

餐厅

客厅


卧室





京公安网备11010502040911