216㎡平层美式风格黄金·山水郡
发布时间:
2018年02月21日
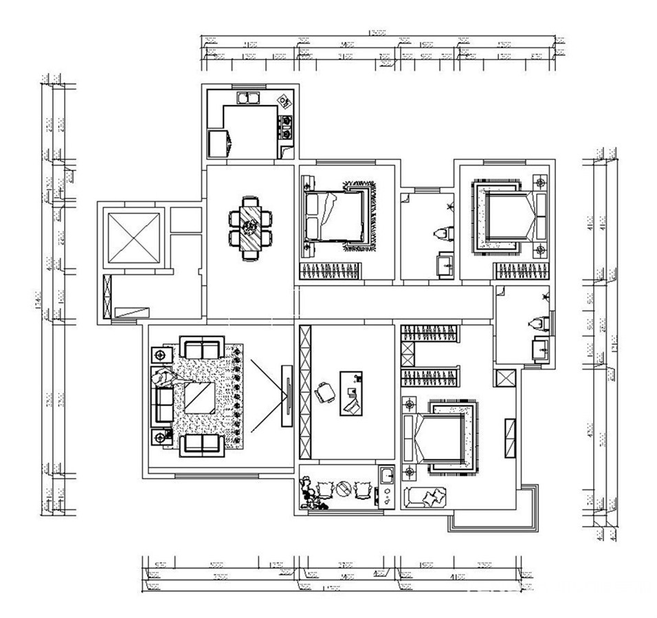
小区:黄金·山水郡 面积:216㎡ 户型:平层 风格:美式风格
设计说明
本案是黄金山水郡216平的户型,户型整体结构没有太多缺陷,考虑户型的面积尺寸,最后将设计方案定位为美式风格,美式风格以宽大,舒适而著称,有文化感、有贵气感,还不缺乏自在感与情调感。影视墙具有美式特色的造型,与顶面的造型吊顶相呼应,沙发背景墙与餐厅墙的造型相呼应,客厅与过道之间用垭口套进行过渡,既将空间进行了区域划分,又因垭口套的直线造型,与客厅、餐厅之间相互呼应,过多的木制造型,让空间过于生硬,在后期的软装配饰上,家具虽然选用的是木制雕花但是在材质上却选用的布艺,这样整体的布艺材质,将空间过硬的木质造型弱化掉让整个空间显得舒适自然,另外在一些抱枕的搭配上选择亮色为主,提高整体空间的活跃氛围,而又与墙面壁纸和一些饰品摆件之间形成相互呼应与互补的关系。
户型图

客厅



卧室


玄关

餐厅





京公安网备11010502040911