150㎡三居现代简约风格中冶盛世滨江
发布时间:
2018年02月09日
小区:中冶盛世滨江 面积:150㎡ 户型:三居 风格:现代简约风格
设计说明
客户更加青睐于简约美式的风格,美式简约风格并不追求华丽、高雅。居室色彩主调为温和色。家具为古典弯腿式,家具、门、窗漆成白色。
美式简约装修风格中,客厅采用白色为主色调。充满美式元素的客厅让空间显得更加华贵。门厅处地面拼花的使用,给人一种华丽的感觉。地下室采用素色壁纸,造型复杂的吊灯,咖色的窗帘,华丽的地毯,米色的沙发加上带有白色条纹的黑色沙发,既带动了室内的氛围,又给人一种和谐、尊贵的视觉效果。
餐厅的设计选材独特充溢着丰富的想象力,色泽自然而富有灵性,深色的餐桌,搭配华丽的造型墙,色彩和谐统一,整个餐厅温暖起来。
主卧的布置较为舒适,作为主人的私密空间,主要以功能性和实用性为考虑的重点,多用舒适的成套布艺来装点,同时在软装和用色上非常统一。
本案的设计追求一种简洁、温馨,让家中呈现一种自然的舒适、干净之美,以其温馨的色彩让家居生活更和谐
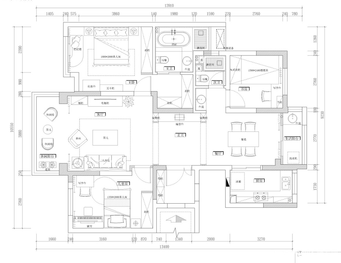
户型图

玄关

餐厅

卧室

客厅






京公安网备11010502040911