210㎡三居现代简约风格逸翠尚府
发布时间:
2018年01月30日
小区:逸翠尚府 面积:210㎡ 户型:三居 风格:现代简约风格
设计说明
新中式风格非常讲究空间的层次感,在需要隔绝视线的地方,则使用中式的屏风或窗棂、中式木门、工艺隔断、简约化的中式“博古架”,通过这种新的分隔方式,单元式住宅就展现出中式家居的层次之美。再以一些简约的造型为基础,添加了中式元素,使整体空间感觉更加丰富,大而不空、厚而不重,有格调又不显压抑。
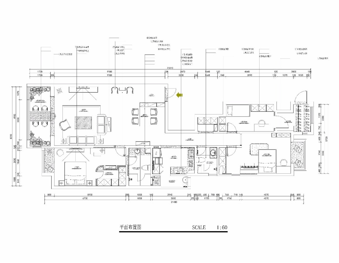
户型图

客厅







卧室


书房


衣帽间

餐厅







京公安网备11010502040911