110㎡平层现代简约风格景泰铭苑
发布时间:
2018年01月23日
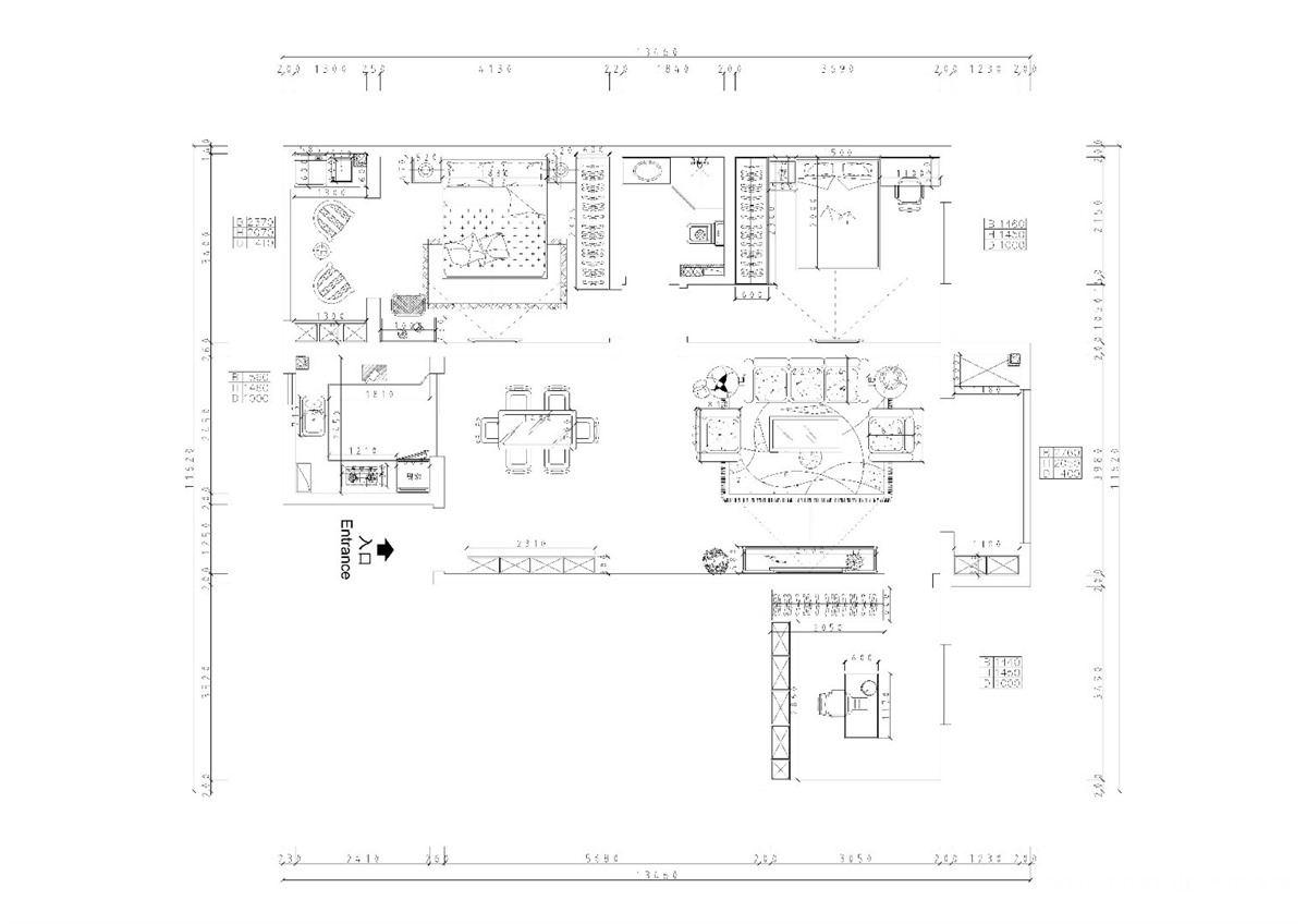
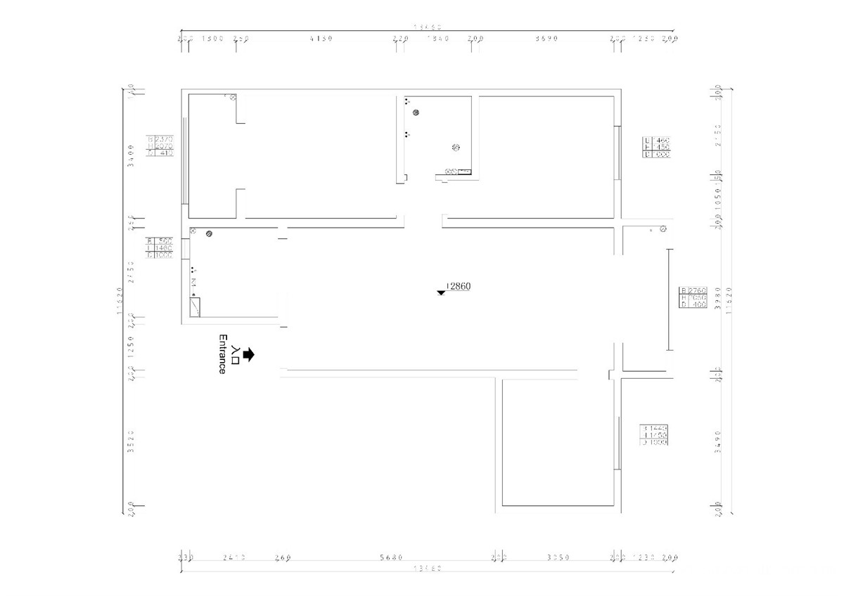
小区:景泰铭苑 面积:110㎡ 户型:平层 风格:现代简约风格
设计说明
这是一个让人能够回归自己内心深处的地方用最简单的线条、材质和色彩,勾勒出宁静、舒适、自由朴实的自然空间,在自然中构建一个可以修身养性驰骋性灵的家。
真我空间的设计,力求在艺术、工程、美学和个性之间相互平衡,并增添趣味性的概念,推崇优雅而简约的生活方式。在家具选择上客厅的主沙发以米白色为基调,线条简单干练,用零星的跳色,做到视觉的冲击,使得个空间达到个性与共性的完美结合!阳光在不同时间进入空间时,它会给人们带来不同的感受,所以在结构上设计师谨慎考虑窗的大小和角度,使阳光充盈整个空间。
户型图

客厅




餐厅






京公安网备11010502040911