144㎡平层现代简约风格紫汀苑
发布时间:
2017年12月20日
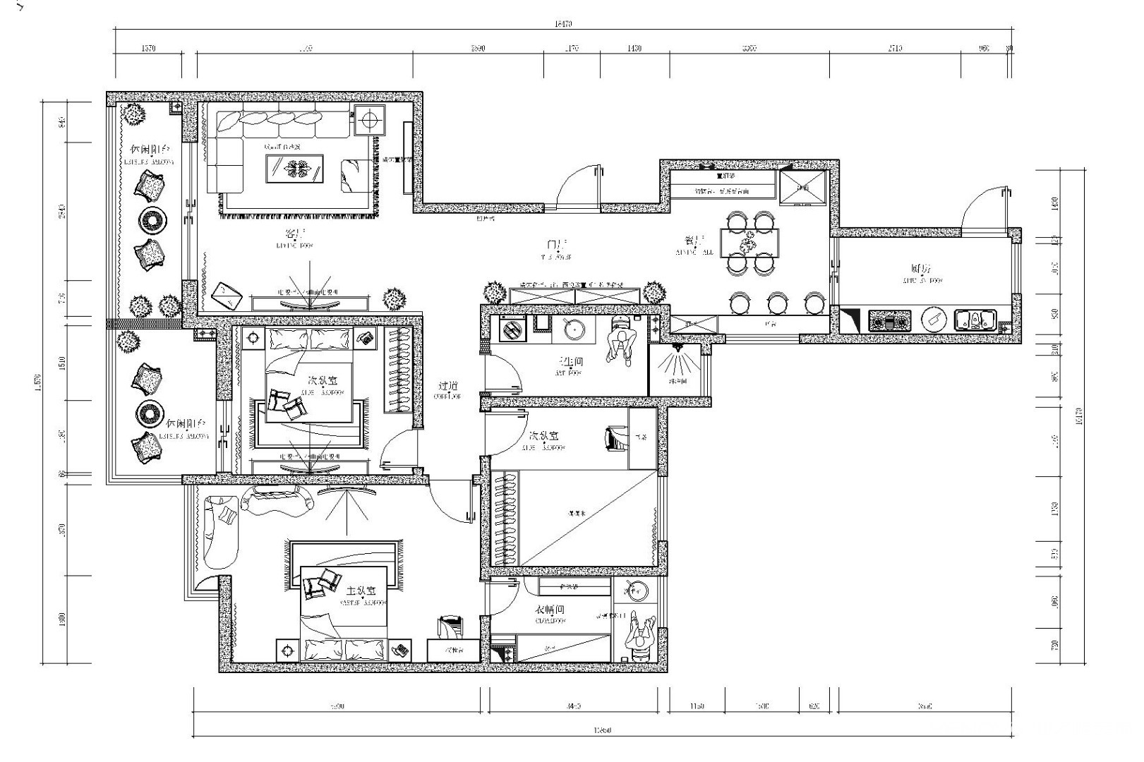
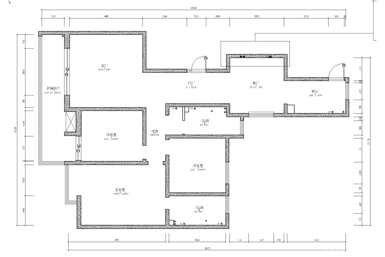
小区:紫汀苑 面积:144㎡ 户型:平层 风格:现代简约风格
设计说明
现代风格简单而有质感· 这种质感体现在细节上的把握, 每一个细小的局部和装饰,都要深思熟虑·在施工上更要求精工细作·是一种对作品精益求精的体现。
本案是围绕现代为主题,适合于时尚年轻的夫妻二人居住。男主幽默风趣,女主美丽动人。现代风格不仅注重居室的实用性,而且还体现出了现代社会生活的精致与个性,符合现代人的生活品位。空间规划上强调公共区域开阔感,使视线及光线得以穿透并展现视觉张力,让空间更显层次感。在都市生活中有个地方让我们慢慢感触、感恩、敢爱,生活就该热泪盈眶,把感爱,浸透你的生命!
户型图

玄关

客厅



卧室

餐厅





京公安网备11010502040911