125㎡三居现代简约风格名悦山庄
发布时间:
2017年08月10日
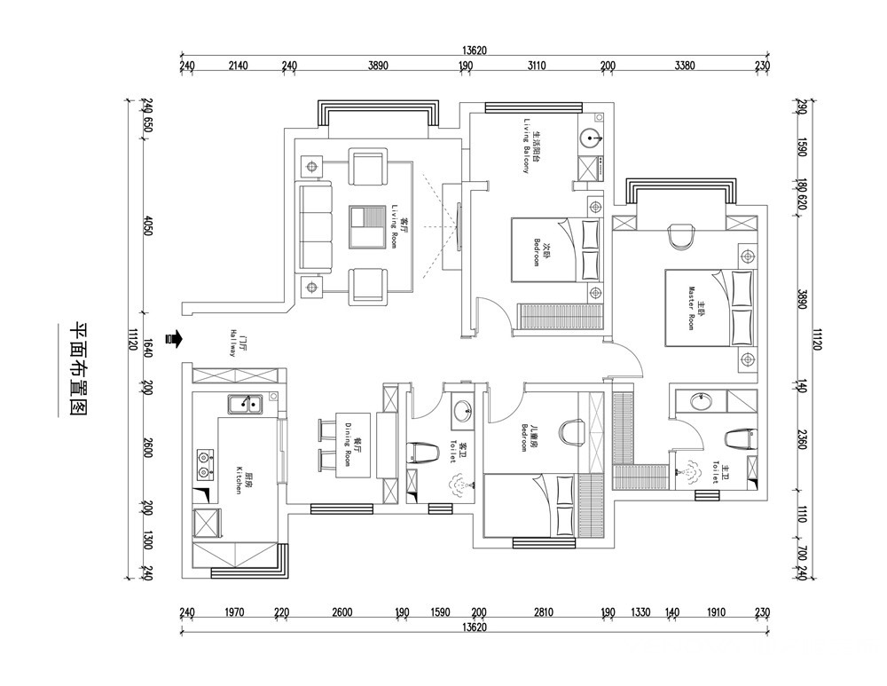
小区:名悦山庄 面积:125㎡ 户型:三居 风格:现代简约风格
设计说明
现代简约风格,简约并不是缺乏设计要素,它是一种更高层次的创作境界。不是要放弃原有建筑空间的规矩和朴实,去对建筑载体进行任意装饰。而是在设计上更加强调功能,强调结构和形式的完整。木色为基调,以蓝系贯穿,点缀跳跃黄色,使整个空间氛围温馨浪漫。重视产品的实用性,简单自然的审美观。独具魅力的是色彩奔放而不失优雅的迷人气质,典雅,温馨,而且浪漫,别有意味的回旋。
户型图

儿童房

卧室


客厅








京公安网备11010502040911