135㎡三居鹭湖宫
发布时间:
2017年07月21日
小区:鹭湖宫 面积:135㎡ 户型:三居 风格:
设计说明
设计说明:
本方案在整体设计上主要是以民宿中式的装饰手法,主要是以写意的表现手法来体现出清静、空灵的空间意境。其中带有东方的禅意韵味在里面,墙面上我们主要以硅藻泥颗粒质感来突出原生态的自然气息,顶面设计上采用了大面积平顶与木质墙板相结合在保留房间自身层高基础上,更加突出了他房间自身的优势,层次更加分明,给人一种看似简单却又不失华丽的错觉。地面上采用了大面积深灰色仿古砖看似就像乡间小道的泥泞小路使我们的设计更加贴近自然。
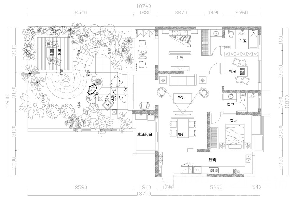
户型图

客厅


餐厅

厨房





京公安网备11010502040911