178㎡四居现代简约风格南飞鸿天锦
发布时间:
2017年06月24日
小区:南飞鸿天锦 面积:178㎡ 户型:四居 风格:现代简约风格
设计说明
本案例风格定位是现代风格,居住人是一对年轻夫妇,有一个小孩,预计未来还会再要一个小孩,所以需要2个儿童房,在小孩不能独立生活的时候最好有一个客房,并且业主希望有一个独立的书房适合工作。整体要装修有质感,可以简单,但是能体现客户的审美和独特的风格,简约大方的设计方案,并且整个空间是简洁富含设计感。功能布局应用合理得当,做到动静分离,功能分配明确。软装配饰上华而不奢、简而不轻。
客餐厅是最能体现给客人看,并且展示他独有的品味的区域,所以地面统一的采用仿大理石地砖,和顶面的白色是百搭的色调,墙面可以用硬包大面积的展示出家的温馨,再配以独特的软装家居。
卧室地面统一采用温馨的木质地板,再墙面用灰色系的纯色壁纸体现整个空间的简约质感,点缀的使用壁挂画和玄关柜去体现卧室的温馨感,更重要的是家具的选择重点,色调是整个部分最重但是比例最少的部分。
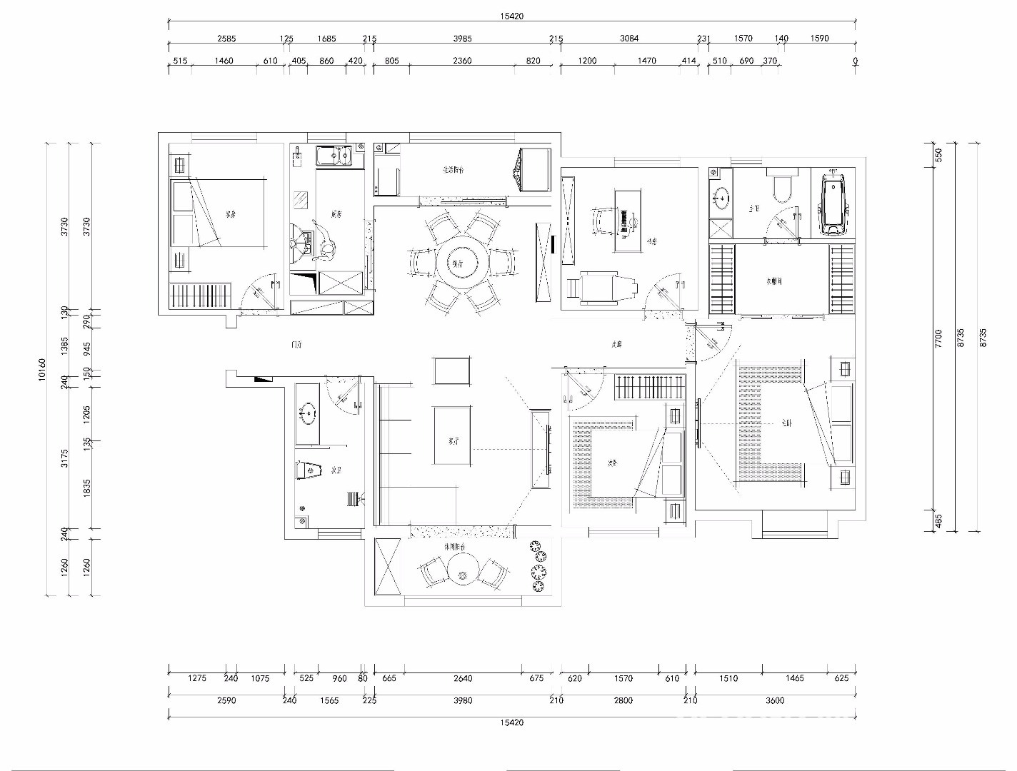
户型图

衣帽间

卧室






客厅



卫生间

餐厅





京公安网备11010502040911