109㎡三居海伦春天
发布时间:
2017年06月24日
小区:海伦春天 面积:109㎡ 户型:三居 风格:
设计说明
风格定位是美式,业主是一对年轻夫妻,喜欢美式自由随意的生活方式,喜欢回到家中享受舒适的生活环境,怀旧的木质感,美式浪漫大气的感觉,而美式是糅合了当时各种风格的元素,所以在设计的过程中,既要功能分区明确,生活方式是一种开放的态度,朋友也会经常过来,空间也是展示给朋友体现主人品味的地方,也要把美式风格完美的融合在这个空间当中。
结合空间来看,客餐厅其实面积并不是特别的大,所以墙面基调以一种简单的壁纸作为基层,把定制的柜子一同设计到电视墙当中,上面可以摆设工艺品,下半部分作为隐藏的收纳空间,电视墙没有固定在墙上,而是采用实木定制壁炉样式的电视柜,带给公共空间家的暖意,在电视墙接近过道的地方,采用简单的木框进行分割,用极具特色的工艺柜和壁灯以及其软装作为玄关,并且在家具的选择上不是传统的L形沙发,而是大气舒适的3+1的沙发,并不浪费任何一点客厅的区域,地面用简单的地毯进行区域的划分。地面和顶面简单的用木地板和吊顶,和软装的厚重感做出区别。
在空间硬装上其实并不复杂,相反,只在顶面用简单的PU线条把顶面和墙面立体感分割开,甚至在次卧的墙面,仅仅是用带样式的壁纸和周围的素色壁纸做出区分,主卧则是全房壁纸是比较统一的,主卧相对来说比较规整,所以美式厚重的家具质感,搭配色彩相对有跳跃性的橘色和绿色撞色色的纹路色彩,次卧则用装饰性实木隔板进行点缀,使得卧室空间不显得凌乱。
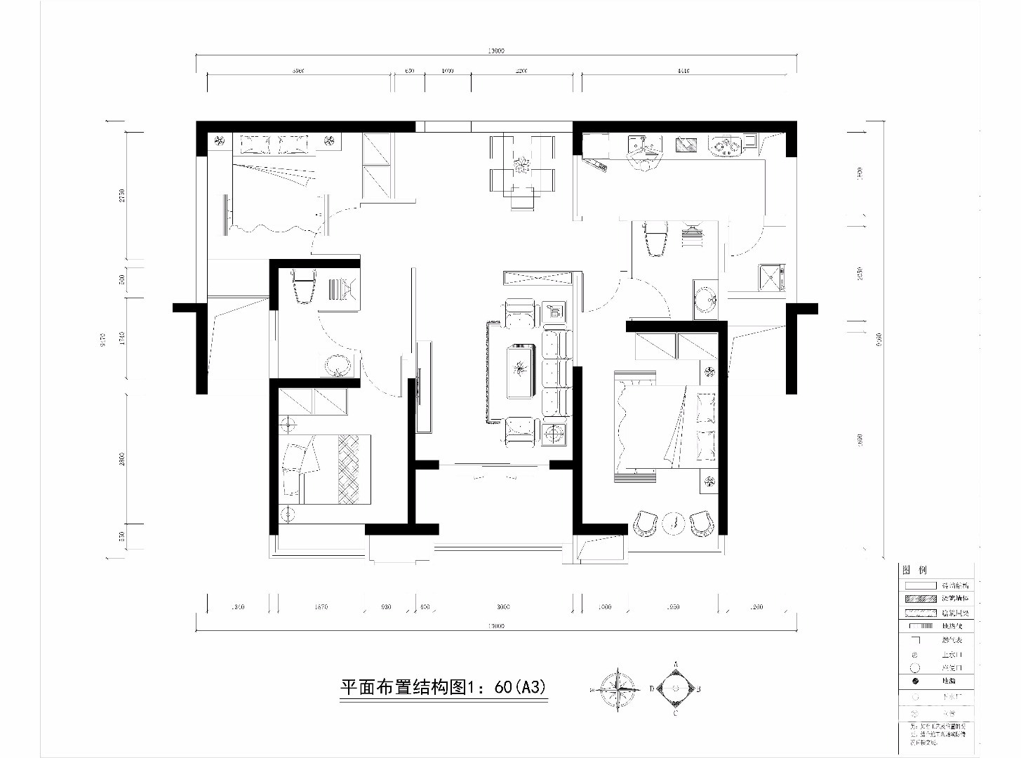
户型图

客厅




卧室


玄关





京公安网备11010502040911