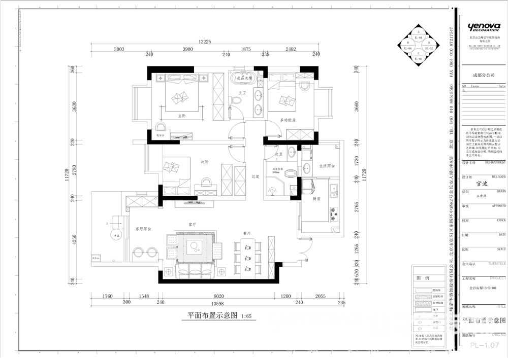
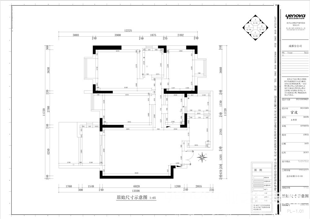
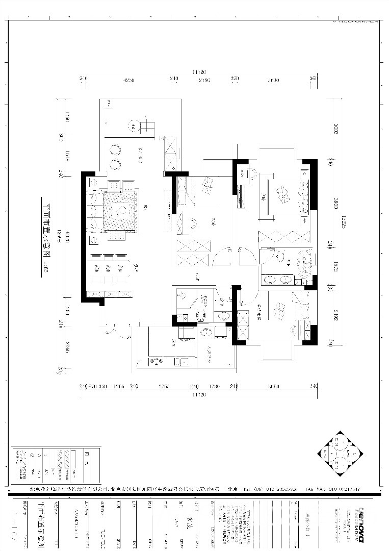
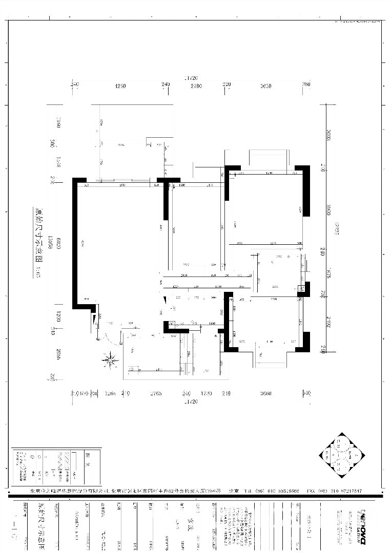
103㎡三居美式风格 金沙府邸
发布时间:
2017年06月21日
小区: 金沙府邸 面积:103㎡ 户型:三居 风格:美式风格
设计说明
本方案为美式乡村风格,经典复古和年轻不一定是背道而驰,遵从自己的内心,屋主选择了更自然经典的风格。觉得特别的贴近大自然,有种回归质朴的感觉。
客厅











本方案为美式乡村风格,经典复古和年轻不一定是背道而驰,遵从自己的内心,屋主选择了更自然经典的风格。觉得特别的贴近大自然,有种回归质朴的感觉。










