600㎡别墅新中式风格漫山香墅
发布时间:
2017年06月21日
小区:漫山香墅 面积:600㎡ 户型:别墅 风格:新中式风格
设计说明
一层
现代中式风格一般比较稳重、成熟。传统中透着现代,现代中揉着古典。其组合方式信守均衡对称的原则,以一种东方人的“留白”美学观念控制的节奏,显出大家风范。
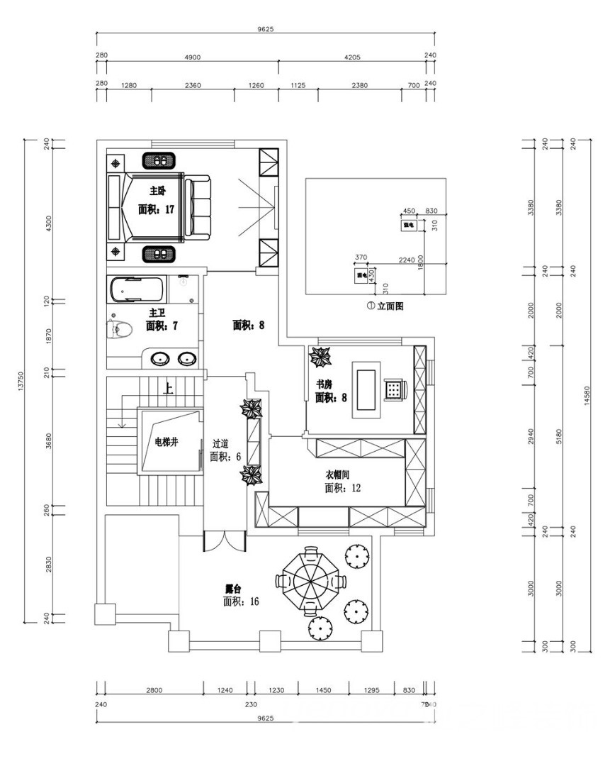
二层
舒缓的意境始终是我们特有的情怀,因此书法常常是成就这种诗意的最好手段。其墙壁上的字画无论数量还是内容都不在多,而在于它所营造的意境。
三层平面布置图
中国风是对清雅含蓄、端庄丰华的东方式精神境界的追求。设计比较简洁、造型简朴优美、格调高雅,搭配时尚。
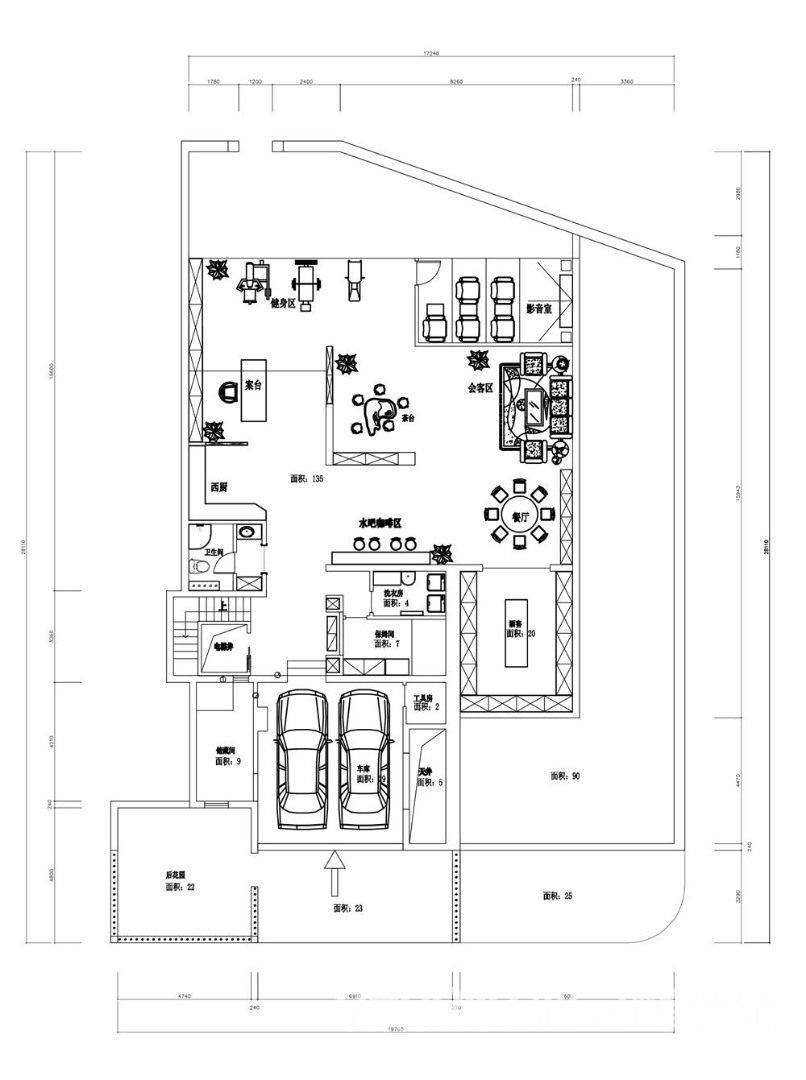
负一层平面布置图
空间上讲究层次,家具陈设讲究对称,重视文化意蕴;配饰擅用字画、古玩、卷轴、盆景,精致的工艺品加以点缀,更具有文化韵味和独特风格,体现中国传统家居文化的独特魅力。
户型图

客厅







书房


卧室


休闲区






京公安网备11010502040911