95㎡二居现代简约风格南城都汇
发布时间:
2017年06月21日
小区:南城都汇 面积:95㎡ 户型:二居 风格:现代简约风格
设计说明
业主是80后,希望自己的家个性时尚。本案定义为现代风格,色调为黑白灰。电视墙正侧两面使用灰木纹石材对缝,拉伸了电视墙的空间视觉感。顶面不再采用传统灯饰,使用明装
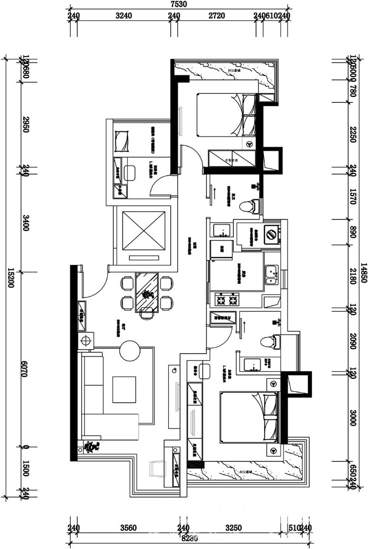
户型图

客厅




餐厅

卫生间

厨房

业主是80后,希望自己的家个性时尚。本案定义为现代风格,色调为黑白灰。电视墙正侧两面使用灰木纹石材对缝,拉伸了电视墙的空间视觉感。顶面不再采用传统灯饰,使用明装







