260㎡别墅新中式风格北欧知识城
发布时间:
2017年06月21日
小区:北欧知识城 面积:260㎡ 户型:别墅 风格:新中式风格
设计说明
业之峰北欧知识城案列,本案业主事业有成,儿女双全。而且非常有孝心,不管再忙都要照顾父母。经过跟业主的深入沟通,决定采用美式设计风格,把空间尽可能开敞,为孩子的活动提供更多的空间。
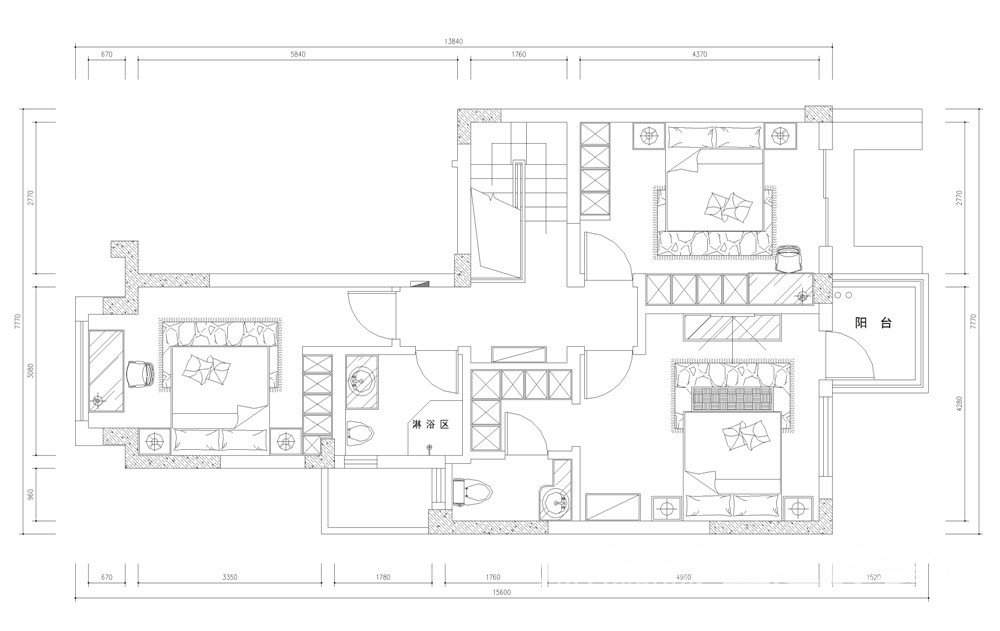
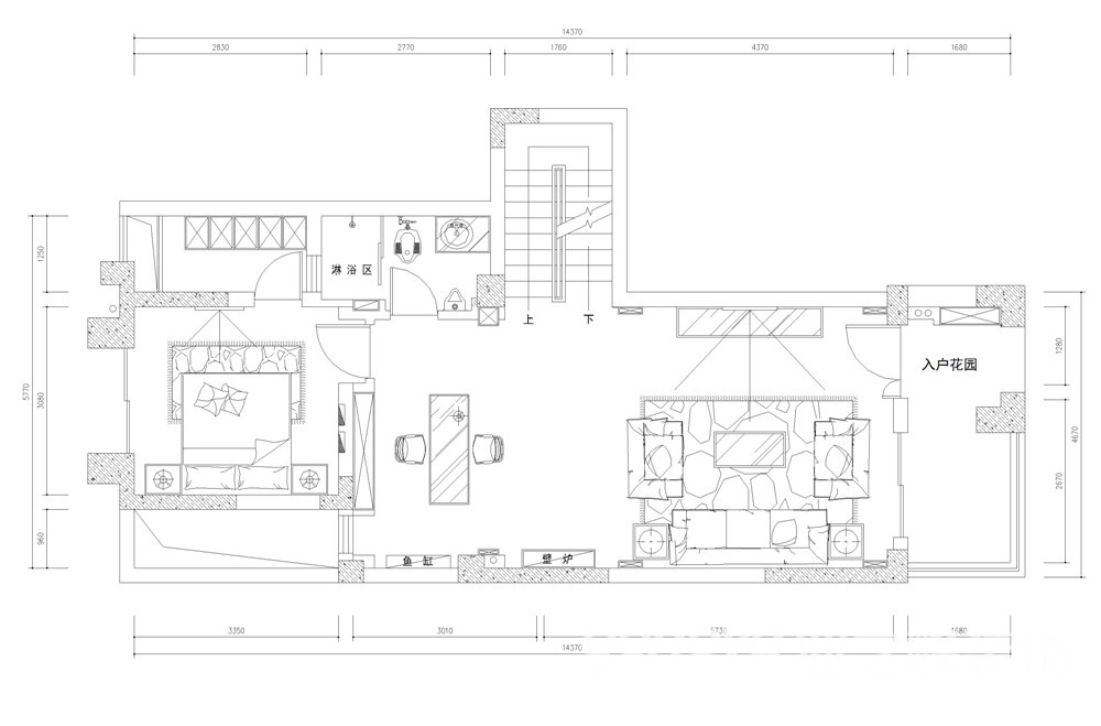
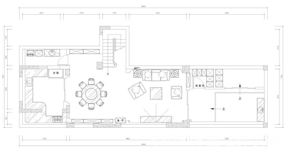
户型图

客厅





卫生间

业之峰北欧知识城案列,本案业主事业有成,儿女双全。而且非常有孝心,不管再忙都要照顾父母。经过跟业主的深入沟通,决定采用美式设计风格,把空间尽可能开敞,为孩子的活动提供更多的空间。






