180㎡四居欧式风格国奥村
发布时间:
2017年06月21日
小区:国奥村 面积:180㎡ 户型:四居 风格:欧式风格
设计说明
本案由于是顶跃,在结构上难免有平层的印记,如果不做大的调整,很难做出令业主满意的效果。在跟业主沟通之后,决定进行大范围的调整,采用美式设计风格,从入户开始就做出大空间、大气势。增加了开放式西厨,方便于家庭成员的互动和交流,西厨和餐厅的开敞衔接无疑是最好的选择。
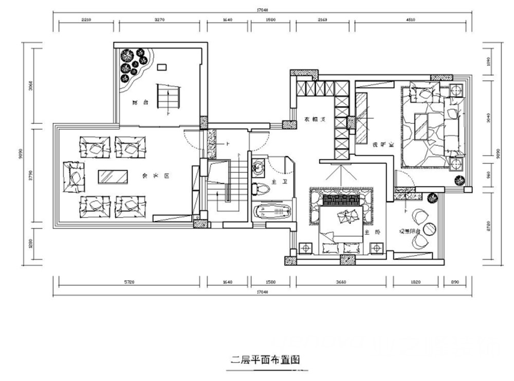
户型图

卧室

客厅



餐厅

休闲区





京公安网备11010502040911