270㎡复式新古典风格北欧知识城
发布时间:
2017年06月21日
小区:北欧知识城 面积:270㎡ 户型:复式 风格:新古典风格
设计说明
业之峰北欧知识城案列,本案采用法式典雅设计风格,根据业主的气质、修养,摒弃了法式设计风格中的描金奢侈感。对原有布局进行重新分隔,调整出整个空间的对称和大气感。根据梁和层高的压抑感,吊顶造型采用大气的设计手法,即使业主采用地暖和中央空调,也不会产生常见的压抑感。
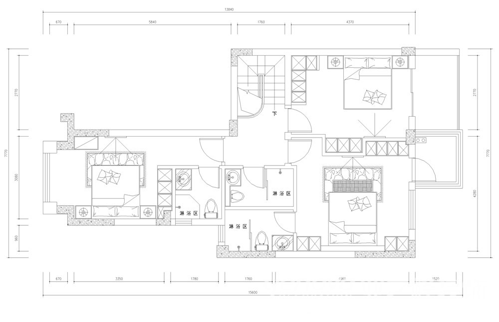
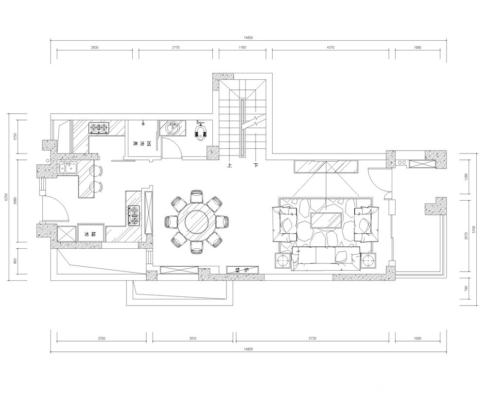
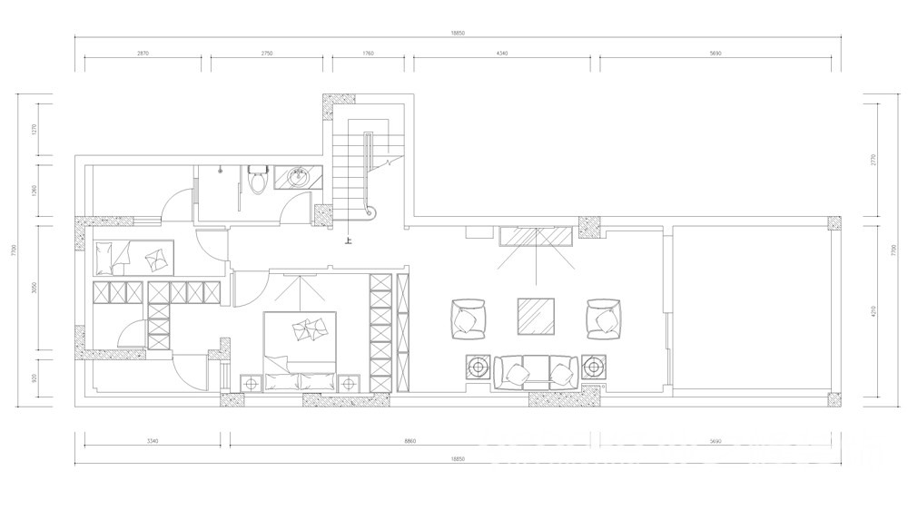
户型图

客厅





卧室





京公安网备11010502040911