240㎡四居欧式风格仁和春天大道
发布时间:
2017年06月21日
小区:仁和春天大道 面积:240㎡ 户型:四居 风格:欧式风格
设计说明
本案女主人喜欢欧式的典雅,男主人喜欢中式的内涵,同时又希望空间能尽可能开敞。最终决定采用美式与中式相结合的设计风格,利用深色实木墙板和实木雕刻图案的衔接,让一层挑高客厅的美式与二层中式风格融合在一起。
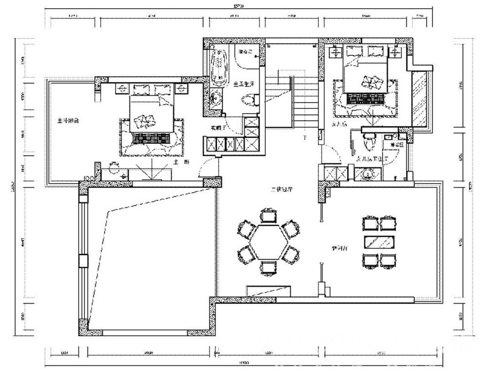
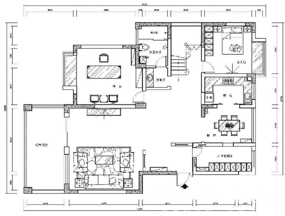
户型图

餐厅

客厅



休闲区





京公安网备11010502040911