106㎡三居北欧风格富洲新城
发布时间:
2017年06月21日
小区:富洲新城 面积:106㎡ 户型:三居 风格:北欧风格
设计说明
在结构上加大厨房面积满足主人对厨房的功能需求。高级灰作为主色调,单人沙发使用红色,点亮了整个空间,起到画龙点睛的作用。而木质电视柜满足收纳需求,又增加了整个空间的自然气息。简单而又浪漫!
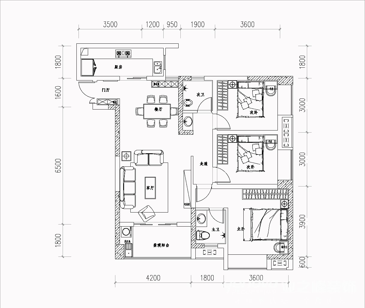
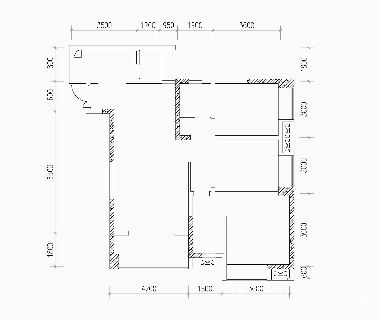
户型图

餐厅

客厅



卧室

在结构上加大厨房面积满足主人对厨房的功能需求。高级灰作为主色调,单人沙发使用红色,点亮了整个空间,起到画龙点睛的作用。而木质电视柜满足收纳需求,又增加了整个空间的自然气息。简单而又浪漫!





