125㎡三居亲亲小镇
发布时间:
2017年06月12日
小区:亲亲小镇 面积:125㎡ 户型:三居 风格:
设计说明
摒弃一切烦琐和奢华,去掉零碎的空间划分,去掉堆砌的颜色和摆设,去掉繁复设计的家具,但整个空间看起来,却又简而不凡。
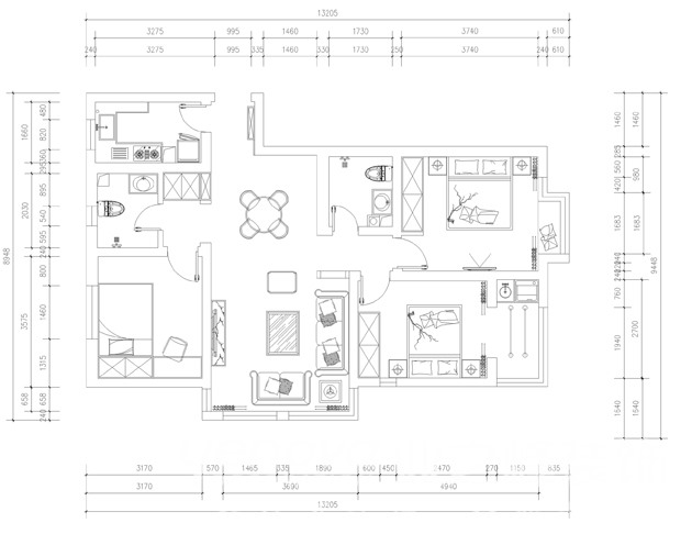
户型图

客厅


卧室

厨房

衣帽间

卫生间

摒弃一切烦琐和奢华,去掉零碎的空间划分,去掉堆砌的颜色和摆设,去掉繁复设计的家具,但整个空间看起来,却又简而不凡。






