168㎡四居现代简约风格印象山
发布时间:
2017年06月08日
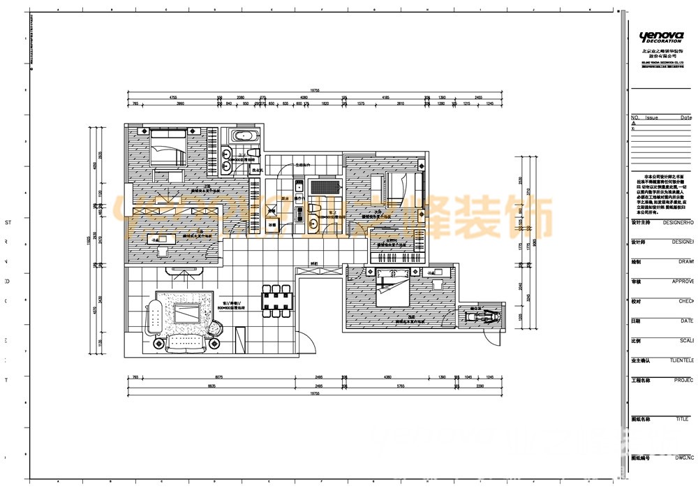
小区:印象山 面积:168㎡ 户型:四居 风格:现代简约风格
设计说明
户型优缺点分析:
问题1: 入户直冲沙发。
解决方案:做一个鞋柜作为缓冲。
设计说明:
以简约的变现形式来满足人们对空间环境那种感性的、本能的和理性的需求,这是当今国际社会流行的设计风格——简约明快的简约主义。而现代人快节奏、高频率、满负荷,已让人到了无可附加的接受地步。人们在这日趋繁忙的生活中,渴望得到一种能彻底放松、以简洁和纯净来调节转换精神空间,这是人们在互补意识支配下,所产生的摆脱繁琐、复杂、追求简单和自然的心理
户型图

客厅



餐厅

儿童房

玄关





京公安网备11010502040911