130㎡三居现代简约风格奥北公元
发布时间:
2017年04月08日
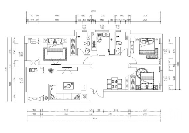
小区:奥北公元 面积:130㎡ 户型:三居 风格:现代简约风格
设计说明
本案例风格定向为现在风格家是心灵的港湾。随着人们在旅游中感受到简约的魅力,“简约但并不简单的装饰风格”。当疲惫的身心对家的依恋越发强烈,人们想要的是轻松、自由的环境,“现代简约风格”自然就成为家居设计的一种风尚。注重大小色块间的组合,地域性的后期配饰融入设计风格之中。简约,不简单走进现代简约风格家居。现代人面临着城市的喧嚣和污染,激烈的竞争压力,还有忙碌的工作和紧张的生活。因而,更加向往清新自然、随意的居室环境。越来越多的都市人开始摒弃繁缛豪华的装修,力求拥有一种自然简约的居室空间。
户型图

客厅




卧室


餐厅





京公安网备11010502040911