460㎡别墅美式风格原河名墅
发布时间:
2017年04月08日
小区:原河名墅 面积:460㎡ 户型:别墅 风格:美式风格
设计说明
本案例风格为美式风格。我曾写过气势磅礴的诗句,也曾唱过温婉柔美的词阙。我像看见永恒一样望着你,晨风细雨,募鼓梵音,仿如义山的诗,容若的词,在每一条时光的经纬里经久靡靡。翠绿满山间,古韵溢千年,如光阴慢过时日,如故事流落笔尖。也许,多年的午后,你可以对着膝前儿孙款款深情,很多年以前,我曾装修过的故事,那是光阴的故事,那是我们的故事。当我们再重逢,或许,这也是你们的故事......
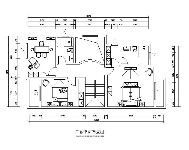
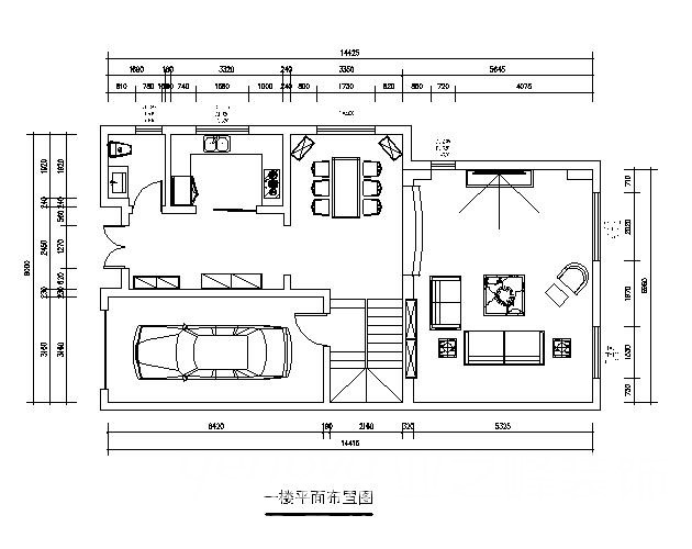
户型图

客厅







书房


卧室

玄关

餐厅





京公安网备11010502040911