130㎡三居现代简约风格奥北公元
发布时间:
2017年04月08日
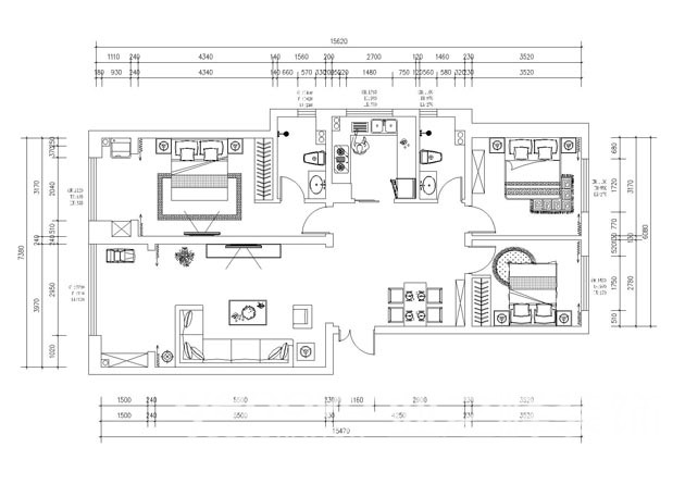
小区:奥北公元 面积:130㎡ 户型:三居 风格:现代简约风格
设计说明
现代风格即现代主义风格。现代主义也称功能主义,是工业社会的产物,起源于1919年包豪(Bauhaus)学派,提倡突破传统,创造革新,重视功能和空间组织,注重发挥结构构成本身的形式美,造型简洁,反对多余装饰,崇尚合理的构成工艺;尊重材料的特性,讲究材料自身的质地和色彩的配置效果;强调设计与工业生产的联系。现代风格一般用在描述建筑和室内作品及设计作品。
户型图

卧室

儿童房

餐厅

客厅








京公安网备11010502040911