400㎡别墅简欧风格大者别墅
发布时间:
2017年04月08日
小区:大者别墅 面积:400㎡ 户型:别墅 风格:简欧风格
设计说明
美式风格是一种以欧洲文化为根基,又融合美洲大陆自由狂放不羁的文化元素以及其它多种风格元素所形成的一种兼容并蓄的家居风格,它带有强烈的殖民地色彩,追求自由和个性是其精神内涵。没有太多造作的修饰与约束,不经意中也成就了一种休闲式的浪漫,而美国的文化又是一个移植文化为主导的脉络,它有着欧罗巴的奢侈与贵气,但又结合了美洲大陆这块水土的不羁,这样结合的结果是剔除了许多羁绊,但又能找寻文化根基的新的怀旧、贵气加大气而又不失自在与随意的风格。美式家居风格的这些元素也正好迎合了时下的文化资产者对生活方式的需求,即:有文化感、有贵气感,还不能缺乏自在感与情调感。
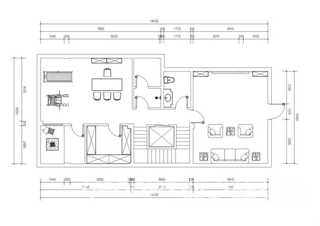
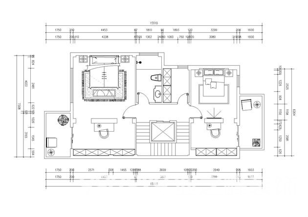
户型图

书房

休闲区

卧室


客厅






餐厅





京公安网备11010502040911