0㎡别墅碧桂园
发布时间:
2017年04月08日
小区:碧桂园 面积:0㎡ 户型:别墅 风格:
设计说明
本案设计为新古典风格。新古典风格营造出其浪漫奢华的感觉。其多运用浅色,设计师以特殊的装饰手法
和家具,结合新古典的的装饰元素,来呈现墙面顶面有层次的空间氛围。顶面和墙面的结合是的空间更得以延伸。本案体现出有化感、空间感,还不能缺乏自在感与情调感。所使用的材料流露出一股浓浓的古典风情。本案在设计上用心至极。
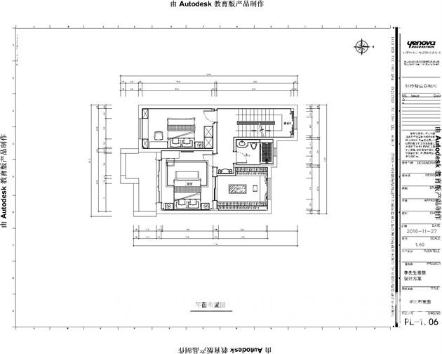
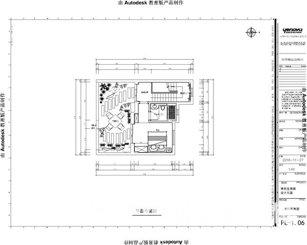
户型图

客厅






儿童房

卫生间

卧室






京公安网备11010502040911