130㎡三居盛世天骄
发布时间:
2017年04月08日
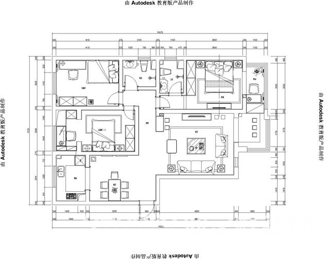
小区:盛世天骄 面积:130㎡ 户型:三居 风格:
设计说明
本案设计为田园风格。田园风格营造出其轻松惬意的感觉。后期软装方面,选用的配搭灯具、家具等也很考究
整套方案完美的融合了空间与人文的和谐共融,凸显出居室主人的精神文化情趣和审美高度。
家具结合简约的田园的装饰元素,来呈现墙面顶面空间感。顶面和墙面的结合是的空间更得以延伸。本案体现出有化感、空间感,还不能缺乏自在感与情调感。所使用的材料流露出一股浓浓的田园风情。
户型图

餐厅

卫生间

客厅







京公安网备11010502040911