240㎡别墅上山间
发布时间:
2017年04月08日
小区:上山间 面积:240㎡ 户型:别墅 风格:
设计说明
本案设计为田园风格。现代风格营造出其休闲的感觉。欧式田园风格注重对自然的表现,但不同的田园有不同的自然,进而也衍生出多种风格,中式的、欧式的,甚至还有南亚的田园风情,各有各的特色,各有各的美丽。主要分英式和法式两种田园风格。前者的特色在于华美的布艺以及纯手工的制作。碎花、条纹、苏格兰格,每一种布艺都乡土味道十足。家具材质多使用松木、椿木,制作以及雕刻全是纯手工的,十分讲究。后者的特色是家具的洗白处理及大胆的配色。家具的洗白处理能使家具呈现出古典美,而红、黄、蓝三色的配搭,则显露着土地肥沃的景象,而椅脚被简化的卷曲弧线及精美的纹饰也是法式优雅乡村生活的体现。
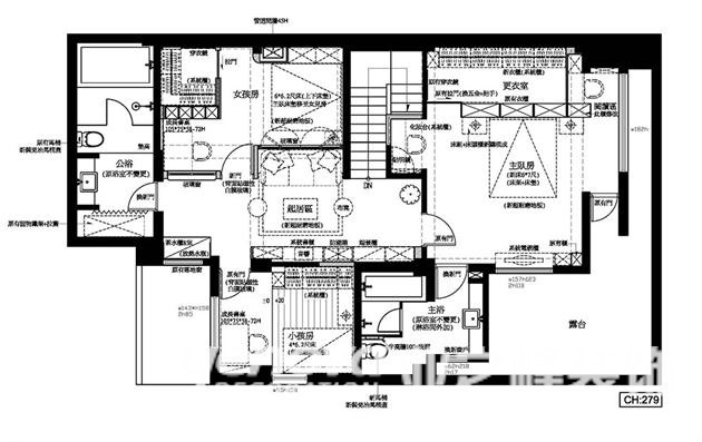
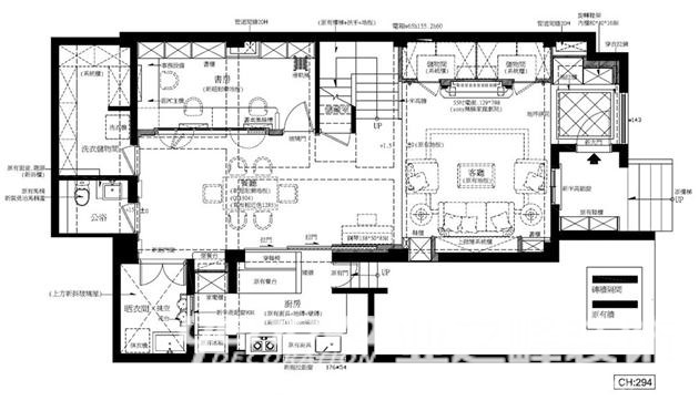
户型图

餐厅


客厅










京公安网备11010502040911