172㎡四居现代简约风格海泊紫庭
发布时间:
2017年03月28日
小区:海泊紫庭 面积:172㎡ 户型:四居 风格:现代简约风格
设计说明
安静淡然、清新素雅、不骄不躁、浓淡皆宜,盛一室清宁,方可享一世清欢。这样的家会让人不由自主的放松,让人忍不住沉醉其中,尽情享受生活。在本案中,客厅是传统与现代居室风格的碰撞,现代的装饰手法和家具,结合古典中式的装饰元素,运用石材和灰镜加以中式元素的装饰画进行互相映衬;餐厅中运用简洁的线条进行细部处理,使之整体与客厅保持统一;厨房运用烤漆材质制作橱柜,美观并便于打理;主卧中,床头背景用线条加壁纸,进行对称布局的装饰,使之赋予韵味。
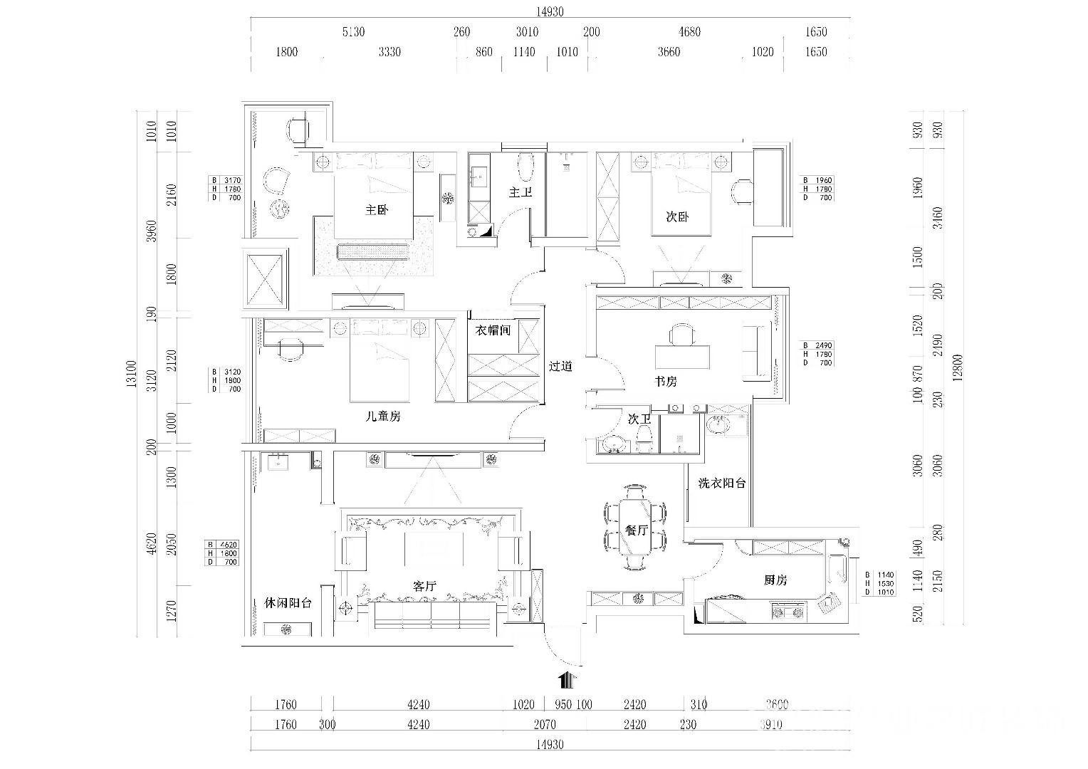
户型图

客厅



餐厅

厨房

卧室





京公安网备11010502040911