131㎡三居现代简约风格CBD楚世家
发布时间:
2017年03月12日
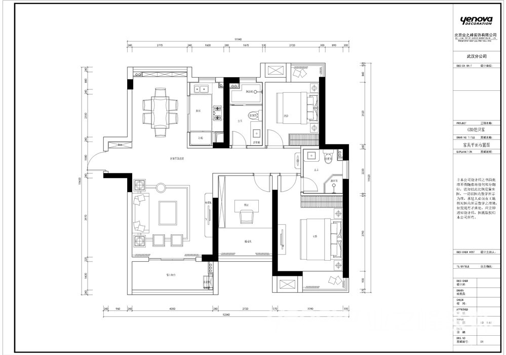
小区:CBD楚世家 面积:131㎡ 户型:三居 风格:现代简约风格
设计说明
CBD楚世家131㎡-现代简约风格
设计单位:武汉业之峰诺华装饰有限公司
主持设计:刘帅
时间:2017年1月12日
面积:131平方米
设计用材:富得利橡木地板,简一大理石瓷砖、阿卡蒂亚壁纸、 实木墙板等。
本案为CBD楚世家131平方米的居住单位,居住者是一对年轻的夫妻,喜欢简单大气,比较新潮的一些装修元素,设计师通过沟通加上参考效果图给业主选择装修风格为现代简约风格。该户型方正,体现了房型的合理性,朝向舒适,光照充足,视觉上的展示宽敞明亮,能很好的体现出生活化。餐厅与厨房的紧密结合,保证用餐的便捷化。但是餐厅阳台面积来说偏狭长,不实用,不能满足正常的功能需求,浪费阳台面积。卫生间狭长,在使用上不能得到最大化的利用,主卧的面积难以达到最大化的利用。设计师将餐厅阳台的墙体拆除,合理的分配充分的利用餐厅阳台的面积,使得餐厅大气,简单。本案属于现代简约风格。现代风格是比较流行的一种风格,追求时尚与潮流,非常注重居室空间的布局与使用功能的完美结合。现代主义也称功能主义,是工业社会的产物,其最早的代表是建于德国魏玛的包豪斯学校。其主题是:要创造一个能使艺术家接受现代生产最省力的环境---机械的环境。这种技术美学的思想是本世纪室内装饰最大的革命。
户型图

卧室

客厅



餐厅





京公安网备11010502040911