80㎡三居现代简约风格中民仁寿里
发布时间:
2017年03月12日
小区:中民仁寿里 面积:80㎡ 户型:三居 风格:现代简约风格
设计说明
设 计 说 明
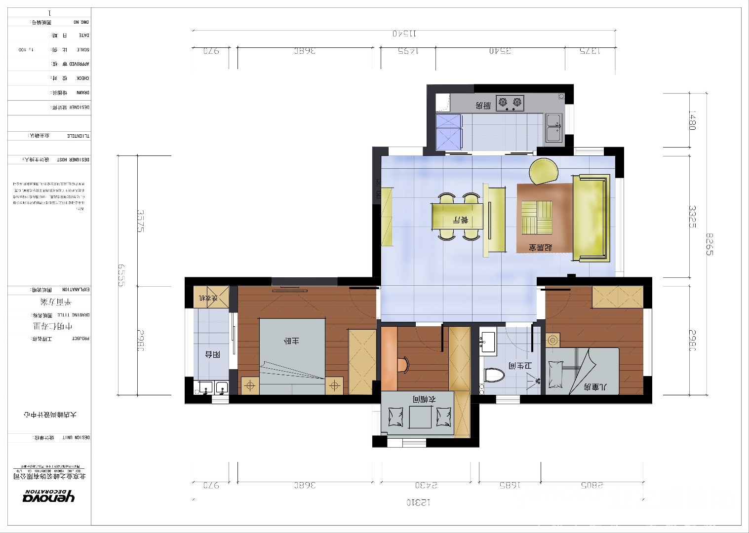
本案为平层小三房两厅结构,户型小巧精致,房主的婚房,所以在设计风格上定位为现代简约时尚风格。
本户型虽然小巧,但南北通透,小房间功能基本能够满足。确有很多的缺点,比如客厅面积较小,餐厅也没有具体划分区域,开发商安装的中央空调使空间吊顶很受局限,空间不够高。
在客厅的改造方面,设计师打破的传统电视背景靠墙的位置,将本电视背景墙安放在整个厅中间位置,形式上采取半高隔断方式,作为客厅区和餐厅区的自然分隔。材质上采用雅士白进口大理石贴面,并将电视采用嵌入式设计,这样人在流通的时候不受电视的边角的碰撞,也看不见挂电视的支架,巧妙而精致。
餐桌自然就靠在大理石隔断另一侧,空间流通也就自然而舒适了,同时将厨房门尽量的扩大,采用黑色细边框透明玻璃滑道门,让整个空间更加通透明亮、通透而不拥堵,漂亮的高光烤漆橱柜也跃然纸上。
墙面颜色采用淡淡的烟灰色为主色调,白色门套、踢脚线勾勒线条。沙发、窗帘、地毯采用深浅不一的宝蓝色,点缀与蓝色形成鲜明对比的橙色,如抱枕、灯具,暖暖黄让空间顿时活泼明快起来。
主卧靠南面,阳光充足,墙面采用淡蓝色乳胶漆,搭配暖色软饰,在家具配置上,白色光感系列家具,独特的光泽使家具倍感时尚,具有美感和舒适并存的享受。现代简约风迎合了许多年轻人的喜爱,打造一个安静祥和,看上去明亮宽敞舒适的家来消除工作的疲惫。
户型图

客厅




厨房

卧室





京公安网备11010502040911